LogoLogo TaglineLogo Tagline
Loading...
Plan 311045RMZ

Exclusive

Mid-Century Modern House Plan with Two-Story Play Room - 5029 Sq Ft

Heated S.F.
5,029
Beds
4 - 5
Baths
3.5
Stories
1
Cars
4

Floor Plan

Plan 311045RMZ

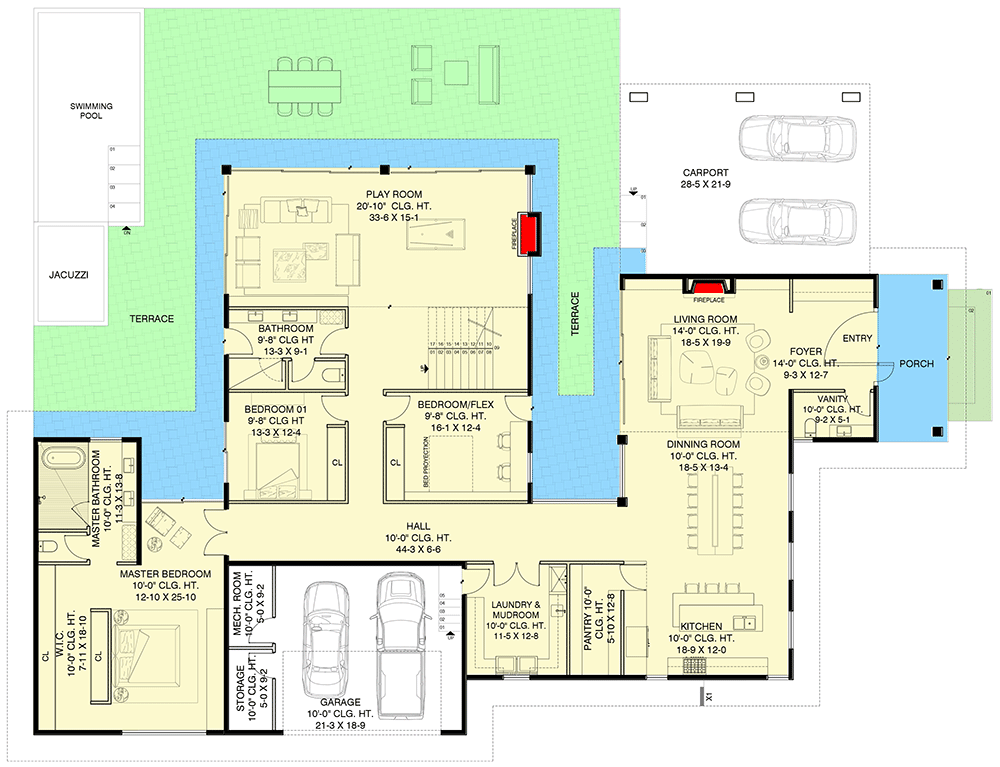
Main Level
Main Level
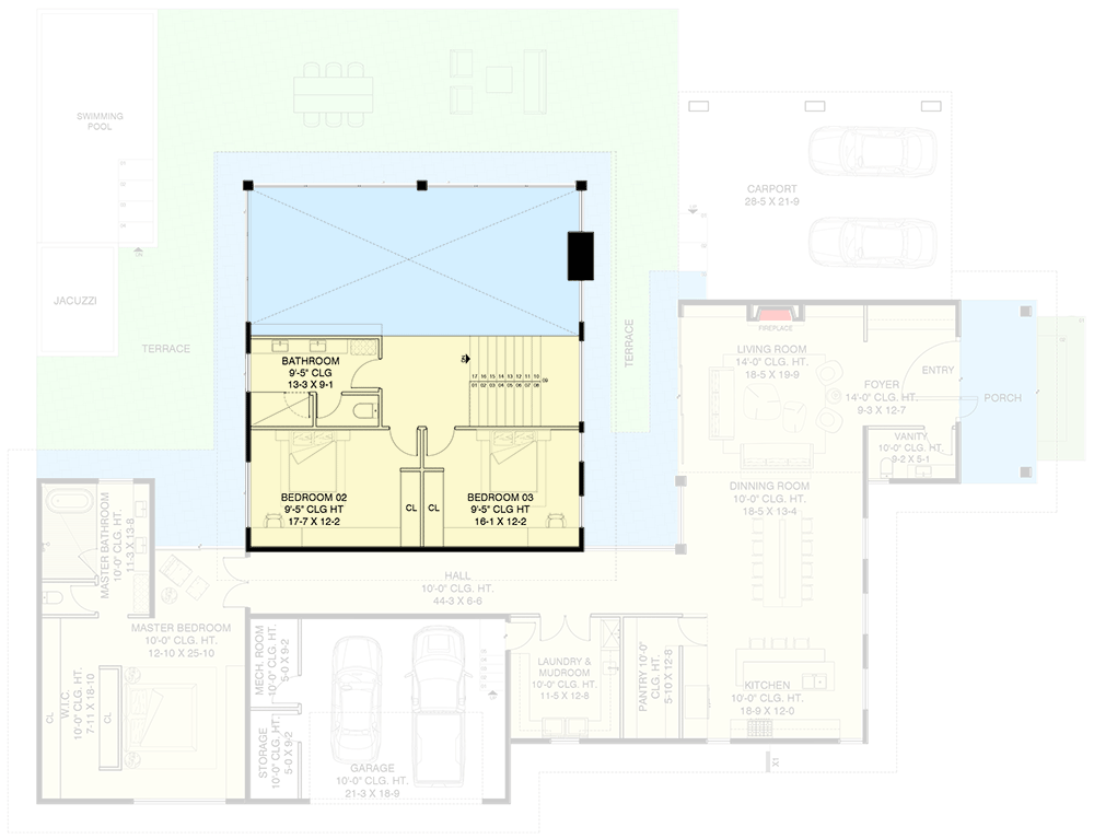
2nd Floor
2nd Floor

Plan 311045RMZ

M-F 9am-5pm EST |

1-203-761-8500

Main Level

Plan 311045RMZ: Mid-Century Modern House Plan with Two-Story Play Room - 5029 Sq Ft - Floor Plan - Main Level - Mid Century Modern, Modern, New American

2nd Floor

Plan 311045RMZ: Mid-Century Modern House Plan with Two-Story Play Room - 5029 Sq Ft - Floor Plan - 2nd Floor - Mid Century Modern, Modern, New American

Plan Details

  • This modern house plan offers you 4 beds, 3.5 baths and 5,029 square feet of heated living space with an unparalleled living experience. As you enter, you'll be greeted by a porch that leads you through a pivot door into a foyer and living room.
  • The ground floor unfolds into a beautifully designed living space with an elegant dining area capable of seating more than ten people located between the kitchen with breakfast bar and the living room with fireplace. 
  • Imagine waking up every day in your luxurious master bedroom, a breathtaking space with an open area for a king-size bed and a cozy corner to unwind. Additionally, you'll indulge in the luxury of a private bathroom featuring double sinks, a spacious shower area, and a bathtub, complemented by a walk-in closet. Two more bedrooms - one of them a flex room which could make a second office or kids' study - share a bath and are steps away from the two-story playroom with two collapsible walls that open to give you the best of indoor-outdoor living and a fireplace.
  • Upstairs, two lovely bedrooms, each with its own closet and study area, are accompanied by a shared full bathroom for your convenience.

What's Included

  • General notes
  • Floor plans
  • Roof plan
  • Sections
  • Framing detail
  • Foundation plan
  • Elevations (all four sides)
  • Electrical plans
  • Window and door schedules

What's Not Included

  • Architectural or Engineering Stamp - handled locally if required
  • Site Plan - handled locally when required
  • Mechanical Drawings (location of heating and air equipment and duct work) - your subcontractors handle this
  • Plumbing Drawings (drawings showing the actual plumbing pipe sizes and locations) - your subcontractors handle this
  • Energy calculations - handled locally when required
Starting at
Loading...
What's included?
Plan Set
Select...

Foundation
Select...

Options
Optional Add-Ons
+$0

Loading...
Price Match Guarantee
Cost to Build Report
Still deciding? Calculate the cost to build this house in your area.
Loading...
Customize This Plan
Need to make changes? We will get you a free price quote within 1 to 3 business days.
Cost to Furnish Report
Instant room-by-room estimates for your entire furniture & home decor plan, matched to your budget.
Loading...

Square Footage Breakdown

Total Heated Area

5,029 sq. ft.

1st Floor

3,680 sq. ft.

2nd Floor

1,349 sq. ft.

Carport

617 sq. ft.

Porch, Rear

153 sq. ft.

TERRACE

2,318 sq. ft.

Beds/Baths

Bedrooms

4 or 5

Full bathrooms

3

Half bathrooms

1

Foundation Type

Standard Foundations

Crawl

Exterior Walls

Exterior Walls

2x6

Dimensions

Width

102' 8"

Depth

82' 9"

Max Ridge Height

26' 9"

Garage

Type

Attached, Carport

Area

516 sq. ft.

Count

4 Cars

Entry Location

Front, Side

Ceiling Heights

Lower Level

10'

First Floor

9' 5"

PLAY ROOM

20' 10''

LIVING ROOM

14' 0''

FOYER

14' 0''

Roof Details

Framing Type

Truss

Architectural Style

Mid Century Modern

Plan Collections

Square Footage Breakdown

Total Heated Area

5,029 sq. ft.

1st Floor

3,680 sq. ft.

2nd Floor

1,349 sq. ft.

Carport

617 sq. ft.

Porch, Rear

153 sq. ft.

TERRACE

2,318 sq. ft.

Beds/Baths

Bedrooms

4 or 5

Full bathrooms

3

Half bathrooms

1

Foundation Type

Standard Foundations

Crawl

Exterior Walls

Exterior Walls

2x6

Dimensions

Width

102' 8"

Depth

82' 9"

Max Ridge Height

26' 9"

Garage

Type

Attached, Carport

Area

516 sq. ft.

Count

4 Cars

Entry Location

Front, Side

Ceiling Heights

Lower Level

10'

First Floor

9' 5"

PLAY ROOM

20' 10''

LIVING ROOM

14' 0''

FOYER

14' 0''

Roof Details

Framing Type

Truss

Plan Collections

* Please note that all sale prices and promotions featured on our website are subject to change without prior notice. While we strive to provide accurate and up-to-date information, occasional discrepancies may occur due to factors beyond our control. We encourage you to verify all details, including pricing and availability, before making any purchase. Exclusions or restrictions may apply to specific promotions. We reserve the right to modify or cancel any sale at our discretion. Thank you for your understanding and happy shopping!Let's go back to the top.