

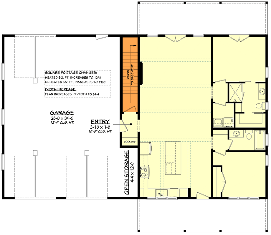
Total Heated Area
1,260 sq. ft.
1st Floor
1,260 sq. ft.
Porch, Front
252 sq. ft.
Porch, Rear
252 sq. ft.
Bedrooms
2
Full bathrooms
2
Half bathrooms
1
Standard Foundations
Slab
Exterior Walls
2x6
Width
60' 0"
Depth
56' 0"
Max Ridge Height
23' 0"
Type
Standard, Attached
Area
1140 sq. ft.
Count
3 or 4 Cars
Entry Location
Front, Rear
First Floor
10'
Primary Pitch
6 on 12
Framing Type
Truss
Total Heated Area
1,260 sq. ft.
1st Floor
1,260 sq. ft.
Porch, Front
252 sq. ft.
Porch, Rear
252 sq. ft.
Bedrooms
2
Full bathrooms
2
Half bathrooms
1
Standard Foundations
Slab
Exterior Walls
2x6
Width
60' 0"
Depth
56' 0"
Max Ridge Height
23' 0"
Type
Standard, Attached
Area
1140 sq. ft.
Count
3 or 4 Cars
Entry Location
Front, Rear
First Floor
10'
Primary Pitch
6 on 12
Framing Type
Truss