LogoLogo TaglineLogo Tagline
Loading...
Plan 16903WG

Modern Farmhouse with Side-load Garage and Optional Bonus Room

Heated S.F.
2,270
Beds
3
Baths
2.5
Stories
1-2
Cars
2
Client Photos

Floor Plan

Plan 16903WG

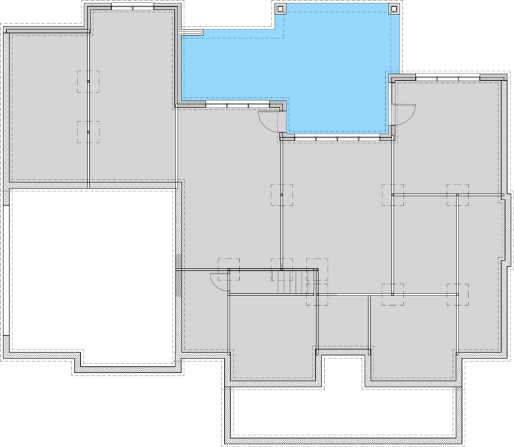
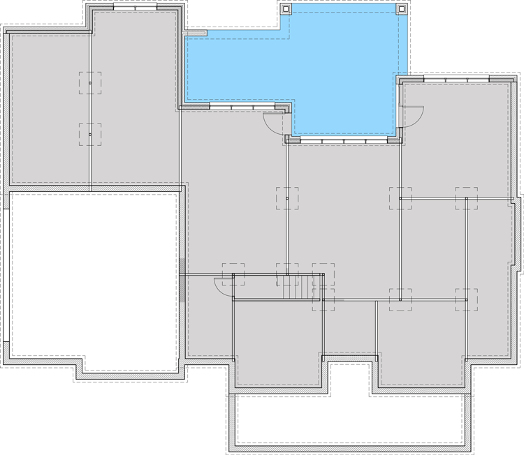
Main Level
Main Level
Bonus
Bonus
Walkout Basement
Walkout Basement

Plan 16903WG

M-F 9am-5pm EST |

1-203-761-8500

Main Level

Plan 16903WG: Modern Farmhouse with Side-load Garage and Optional Bonus Room - Floor Plan - Main Level - Country, Farmhouse, Modern Farmhouse, New American, Southern

Bonus

Plan 16903WG: Modern Farmhouse with Side-load Garage and Optional Bonus Room - Floor Plan - Bonus - Country, Farmhouse, Modern Farmhouse, New American, Southern

Walkout Basement

Plan 16903WG: Modern Farmhouse with Side-load Garage and Optional Bonus Room - Floor Plan - Walkout Basement - Country, Farmhouse, Modern Farmhouse, New American, Southern

Plan Details

  • Filling the demand for all the most popular features, this modern Farmhouse house plan boasts an open layout, a study, split bedrooms and lots of outdoor living spaces including a barbecue porch.
  • Enjoy the warmth of the family room fireplace while you cook, since the kitchen sink in the island faces forward.
  • The home has both a walk-in food pantry and a butler's pantry.
  • Walls of glass bring in light and views of the porch and your backyard.
  • Every bedroom gets a walk-in closet and the big master suite offers a lovely tray ceiling and a door to the back porch.
  • Optional bonus space can be finished when you are ready.
  • The side load garage makes this home suitable for a corner lot.
Build Gallery
See and hear from existing customers with real photos, videos, and reviews.
build gallery item - House Plan 16903WG comes to life in North Carolina

House Plan 16903WG comes to life in North Carolina

25

Photos

What's Included

  • Floor Plans – ¼”=1’-0” scale floor plan indicating location of frame and masonry walls, support members, doors, windows, plumbing fixtures, cabinets, shelving, ceiling conditions and notes deemed relevant to this plan.
  • Exterior Elevations – All elevations at ¼” = 1’-0” scale in most cases.  Some older designs may contain 1/8” scale side and rear elevations. Drawing will indicate overall configuration of home at each side view and make note of plate heights, roof overhangs, window header heights, roof pitches, materials used and extent to which they are used and enlargement of any details we feel necessary to explain the construction.
  • Building Sections – ¼” = 1’-0” building sections are included when there is no other reasonable way to indicate the volumetric/height conditions in the home.  Most of this information can usually be determined from the exterior elevations.
  • Cabinet Elevations – 3/8” = 1’-0” scale elevations indicating configuration of cabinets, heights, widths, type of components used, cabinet material and finish, counter surfaces, appliances,
  • Framing Plans – ¼” – 1’-0” scale framing plans indicating size and spacing of members as well as bracing and blocking required for structural purposes. Local codes will most likely need to be consulted.
  • Foundation Plans – ¼” = 1’-0” scale foundation plans indicating location of structural walls, grade beams, reinforcing steel and structural columns.  Consulting a local engineer is advisable as well as is analysis of soil conditions on site.
  • Electrical Plans – ¼” = 1’-0” scale schematic plans indicating location and types of electrical fixtures, switches, outlets, and how they are to be switched.  Plans do not include circuiting or wire sizing.  Plans will also include specialty items such as hose bibs, gas connections, location of a/c equipment, return air vents or other mechanical/electrical/plumbing items which need to be located.

What's Not Included

  • Architectural or Engineering Stamp - handled locally if required
  • Site Plan - handled locally when required
  • Mechanical Drawings (location of heating and air equipment and duct work) - your subcontractors handle this
  • Plumbing Drawings (drawings showing the actual plumbing pipe sizes and locations) - your subcontractors handle this
  • Energy calculations - handled locally when required

Starting at

Loading...
Price Match Guarantee
What's included?

FORMAT & LICENSE

Choose an option

$0

Not sure what to choose?

Pointer link icon

FOUNDATION

Choose an option

+$0

OPTIONS

Choose Additional Options

+$0

Loading...

Modify this Plan

Receive a free modification quote within 3 business days.

Loading...

Start with a Cost Report

Calculate the cost to build & furnish your home.

Loading...
Loading...

Square Footage Breakdown

Total Heated Area

2,270 sq. ft.

1st Floor

2,270 sq. ft.

Bonus

489 sq. ft.

Porch, Front

287 sq. ft.

Porch, Rear

295 sq. ft.

Porch, Combined

723 sq. ft.

Beds/Baths

Bedrooms

3

Full bathrooms

2

Half bathrooms

1

Foundation Type

Standard Foundations

Slab

Exterior Walls

Exterior Walls

2x4

Optional Type(s)

2x6

Dimensions

Width

71' 2"

Depth

61' 9"

Max Ridge Height

26' 10"

Garage

Type

Attached

Area

599 sq. ft.

Count

2 Cars

Entry Location

Side

Roof Details

Primary Pitch

8 on 12

Secondary Pitch

12 on 12

Framing Type

Stick

Plan Collections

Square Footage Breakdown

Total Heated Area

2,270 sq. ft.

1st Floor

2,270 sq. ft.

Bonus

489 sq. ft.

Porch, Front

287 sq. ft.

Porch, Rear

295 sq. ft.

Porch, Combined

723 sq. ft.

Beds/Baths

Bedrooms

3

Full bathrooms

2

Half bathrooms

1

Foundation Type

Standard Foundations

Slab

Exterior Walls

Exterior Walls

2x4

Optional Type(s)

2x6

Dimensions

Width

71' 2"

Depth

61' 9"

Max Ridge Height

26' 10"

Garage

Type

Attached

Area

599 sq. ft.

Count

2 Cars

Entry Location

Side

Roof Details

Primary Pitch

8 on 12

Secondary Pitch

12 on 12

Framing Type

Stick

Plan Collections

* Please note that all sale prices and promotions featured on our website are subject to change without prior notice. While we strive to provide accurate and up-to-date information, occasional discrepancies may occur due to factors beyond our control. We encourage you to verify all details, including pricing and availability, before making any purchase. Exclusions or restrictions may apply to specific promotions. We reserve the right to modify or cancel any sale at our discretion. Thank you for your understanding and happy shopping!Let's go back to the top.