

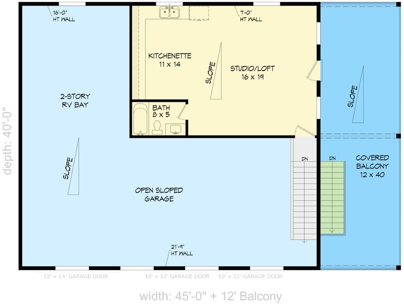
Total Heated Area
577 sq. ft.
2nd Floor
577 sq. ft.
Porch, Rear
480 sq. ft.
Bedrooms
1
Full bathrooms
1
Standard Foundations
Slab
Exterior Walls
2x6
Width
57' 0"
Depth
40' 0"
Max Ridge Height
23' 3"
Type
Detached, Carport, RV Garage
Area
1800 sq. ft.
Count
3 Cars
Entry Location
Front
Primary Pitch
1.5 on 12
Framing Type
Stick
Total Heated Area
577 sq. ft.
2nd Floor
577 sq. ft.
Porch, Rear
480 sq. ft.
Bedrooms
1
Full bathrooms
1
Standard Foundations
Slab
Exterior Walls
2x6
Width
57' 0"
Depth
40' 0"
Max Ridge Height
23' 3"
Type
Detached, Carport, RV Garage
Area
1800 sq. ft.
Count
3 Cars
Entry Location
Front
Primary Pitch
1.5 on 12
Framing Type
Stick