

Total Heated Area
2,700 sq. ft.
1st Floor
2,700 sq. ft.
Basement Unfinished
615 sq. ft.
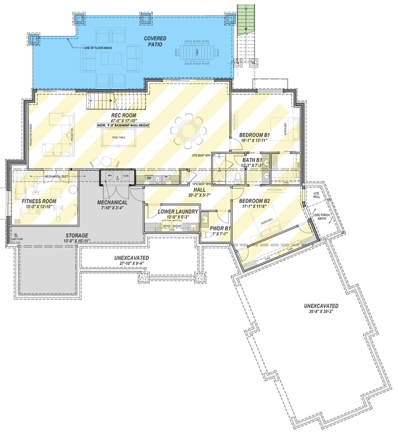
Optional Lower Level
2,217 sq. ft.
Porch, Front
223 sq. ft.
Deck
128 sq. ft.
Covered Patio
683 sq. ft.
Covered Deck
555 sq. ft.
Bedrooms
2, 3, or 4
Full bathrooms
2 or 3
Half bathrooms
1 or 2
Standard Foundations
Walkout
Exterior Walls
2x6
Width
89' 5"
Depth
96' 6"
Max Ridge Height
28' 7"
Type
Attached
Area
978 sq. ft.
Count
3 Cars
Entry Location
Courtyard
Lower Level
9'
First Floor
10'
Primary Pitch
10 on 12
Secondary Pitch
<4 on 12
Framing Type
Stick And Truss
Total Heated Area
2,700 sq. ft.
1st Floor
2,700 sq. ft.
Basement Unfinished
615 sq. ft.
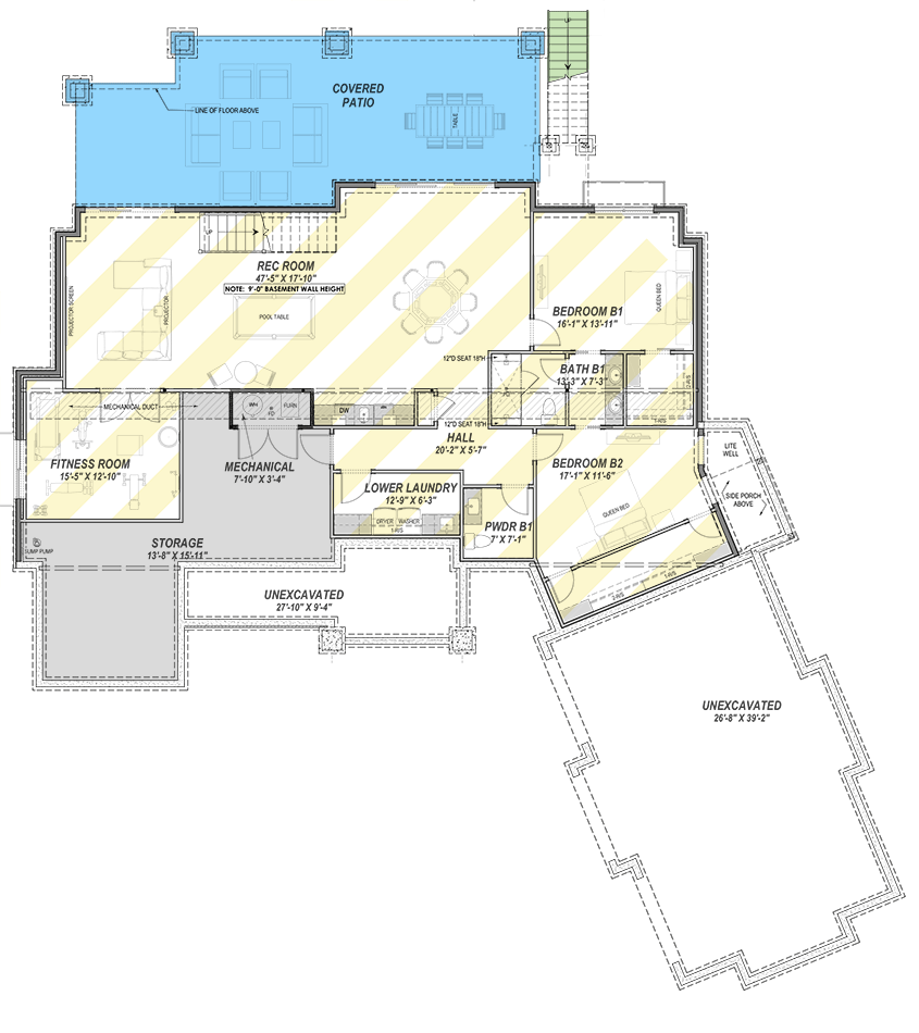
Optional Lower Level
2,217 sq. ft.
Porch, Front
223 sq. ft.
Deck
128 sq. ft.
Covered Patio
683 sq. ft.
Covered Deck
555 sq. ft.
Bedrooms
2, 3, or 4
Full bathrooms
2 or 3
Half bathrooms
1 or 2
Standard Foundations
Walkout
Exterior Walls
2x6
Width
89' 5"
Depth
96' 6"
Max Ridge Height
28' 7"
Type
Attached
Area
978 sq. ft.
Count
3 Cars
Entry Location
Courtyard
Lower Level
9'
First Floor
10'
Primary Pitch
10 on 12
Secondary Pitch
<4 on 12
Framing Type
Stick And Truss