Exclusive


Total Heated Area
6,661 sq. ft.
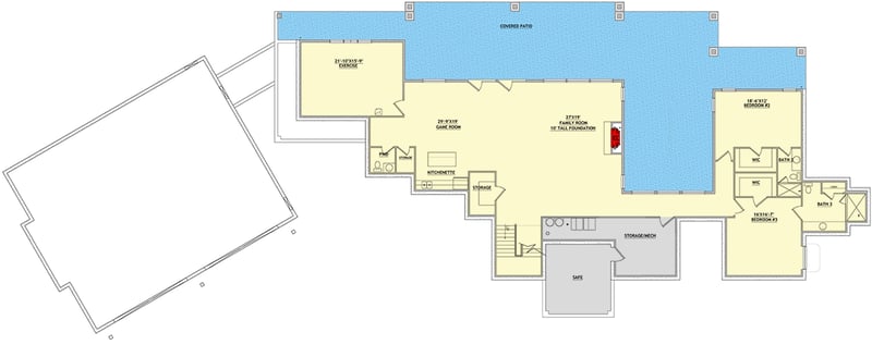
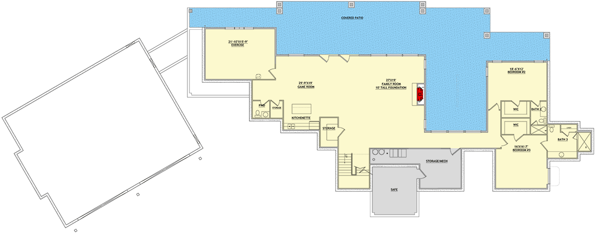
Lower Level
3,362 sq. ft.
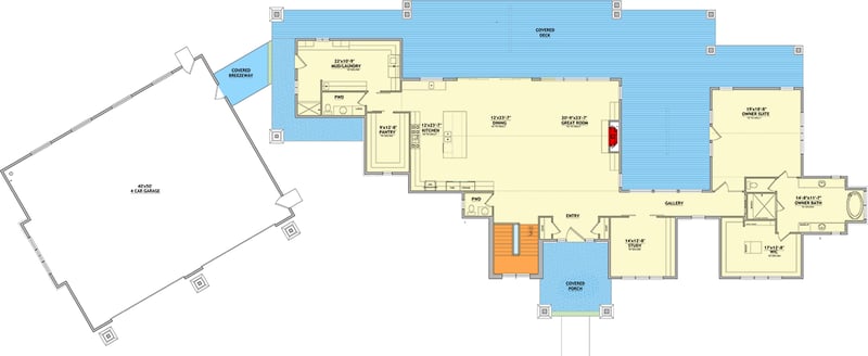
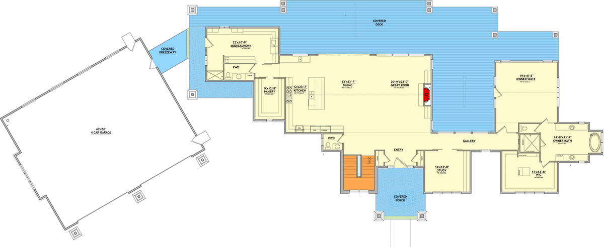
1st Floor
3,299 sq. ft.
Bedrooms
3
Full bathrooms
4
Standard Foundations
Walkout
Exterior Walls
2x6
Width
186' 3"
Depth
71' 2"
Max Ridge Height
27' 2"
Type
Standard
Area
2024 sq. ft.
Count
4 Cars
Entry Location
Courtyard
Lower Level
10'
First Floor
10'
Primary Pitch
12 on 12
Secondary Pitch
8 on 12
Framing Type
Truss
Total Heated Area
6,661 sq. ft.
Lower Level
3,362 sq. ft.
1st Floor
3,299 sq. ft.
Bedrooms
3
Full bathrooms
4
Standard Foundations
Walkout
Exterior Walls
2x6
Width
186' 3"
Depth
71' 2"
Max Ridge Height
27' 2"
Type
Standard
Area
2024 sq. ft.
Count
4 Cars
Entry Location
Courtyard
Lower Level
10'
First Floor
10'
Primary Pitch
12 on 12
Secondary Pitch
8 on 12
Framing Type
Truss