

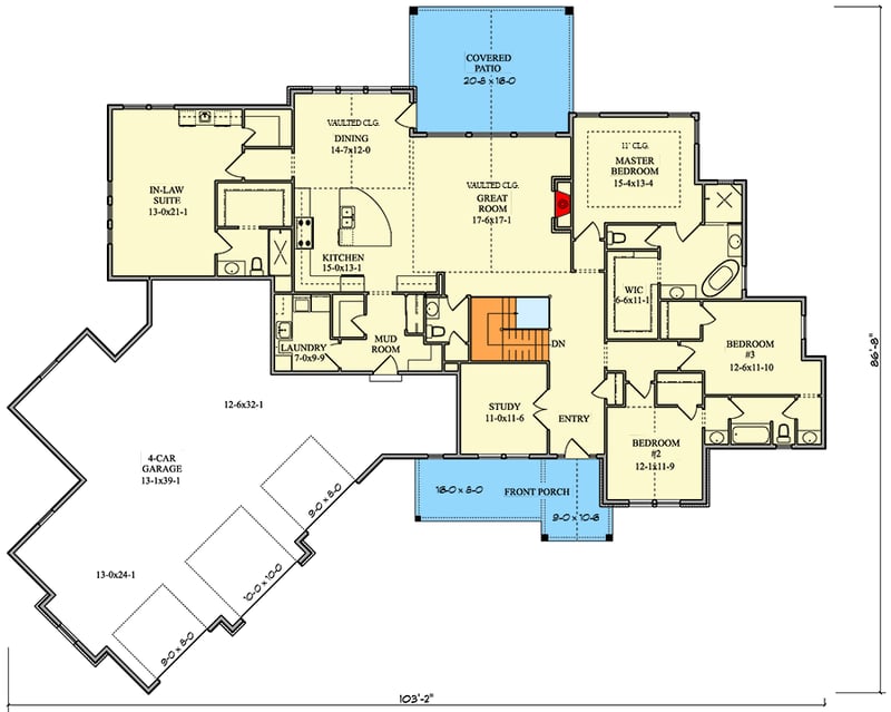
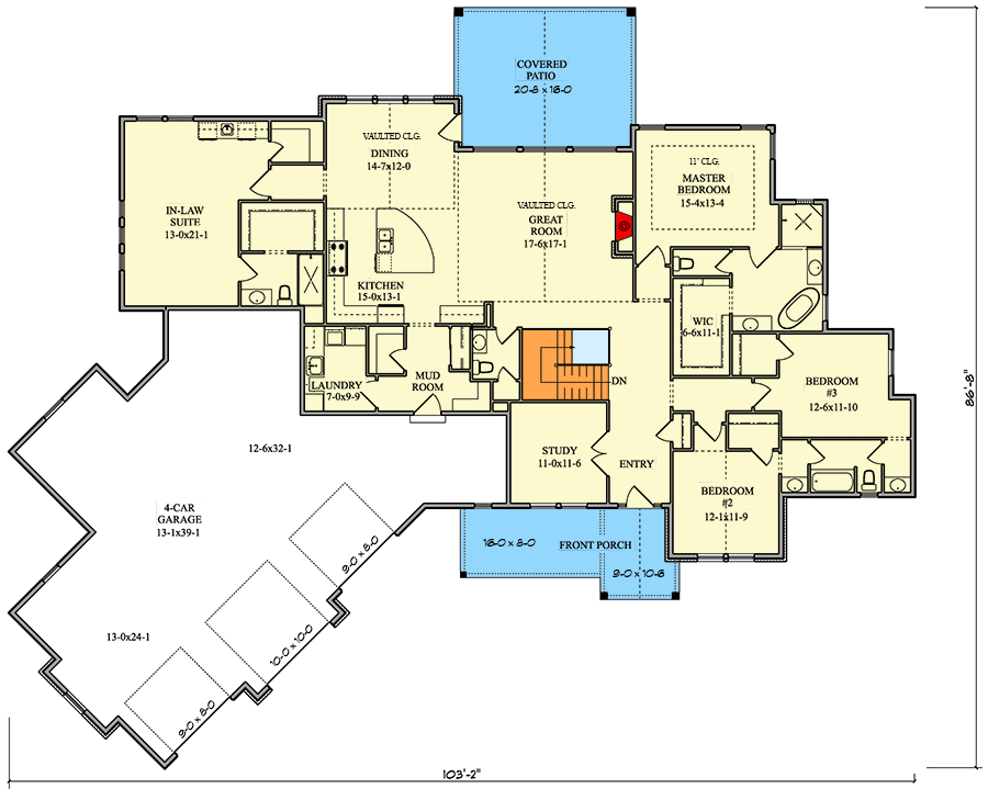
Total Heated Area
2,998 sq. ft.
1st Floor
2,998 sq. ft.
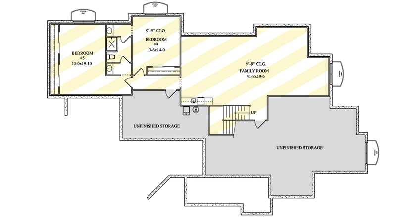
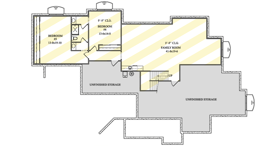
Basement Unfinished
1,287 sq. ft.
Optional Lower Level
1,711 sq. ft.
Porch, Combined
546 sq. ft.
Bedrooms
4, 5, or 6
Full bathrooms
3 or 4
Half bathrooms
1
Standard Foundations
Walkout
Exterior Walls
2x6
Width
103' 2"
Depth
86' 8"
Max Ridge Height
25' 2"
Type
Attached
Area
1599 sq. ft.
Count
4 Cars
Entry Location
Courtyard
Lower Level
10'
First Floor
10'
Primary Pitch
10 on 12
Secondary Pitch
8 on 12
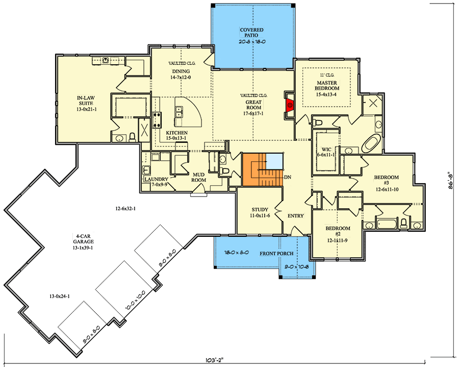
Total Heated Area
2,998 sq. ft.
1st Floor
2,998 sq. ft.
Basement Unfinished
1,287 sq. ft.
Optional Lower Level
1,711 sq. ft.
Porch, Combined
546 sq. ft.
Bedrooms
4, 5, or 6
Full bathrooms
3 or 4
Half bathrooms
1
Standard Foundations
Walkout
Exterior Walls
2x6
Width
103' 2"
Depth
86' 8"
Max Ridge Height
25' 2"
Type
Attached
Area
1599 sq. ft.
Count
4 Cars
Entry Location
Courtyard
Lower Level
10'
First Floor
10'
Primary Pitch
10 on 12
Secondary Pitch
8 on 12