




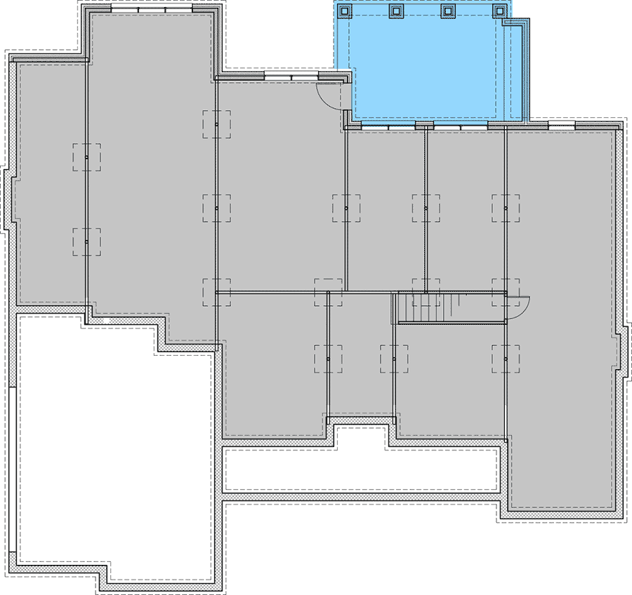
Total Heated Area
2,459 sq. ft.
1st Floor
2,459 sq. ft.
Bonus
261 sq. ft.
Porch, Front
204 sq. ft.
Porch, Rear
229 sq. ft.
Bedrooms
4
Full bathrooms
3
Standard Foundations
Slab
Exterior Walls
2x4
Optional Type(s)
2x6
Width
69' 0"
Depth
65' 0"
Max Ridge Height
26' 3"
Type
Attached
Area
632 sq. ft.
Count
2 or 3 Cars
Entry Location
Side
First Floor
10'
Second Floor
9'
Primary Pitch
12 on 12
Secondary Pitch
8 on 12
Framing Type
Stick
Total Heated Area
2,459 sq. ft.
1st Floor
2,459 sq. ft.
Bonus
261 sq. ft.
Porch, Front
204 sq. ft.
Porch, Rear
229 sq. ft.
Bedrooms
4
Full bathrooms
3
Standard Foundations
Slab
Exterior Walls
2x4
Optional Type(s)
2x6
Width
69' 0"
Depth
65' 0"
Max Ridge Height
26' 3"
Type
Attached
Area
632 sq. ft.
Count
2 or 3 Cars
Entry Location
Side
First Floor
10'
Second Floor
9'
Primary Pitch
12 on 12
Secondary Pitch
8 on 12
Framing Type
Stick