LogoLogo TaglineLogo Tagline
Loading...

Cost to Build Report for Plan 890107AH

One-Level Traditional House Plan with Split Beds - 2005 Sq FT

Main Level

Plan 890107AH: One-Level Traditional House Plan with Split Beds - 2005 Sq FT - Floor Plan - Main Level - Craftsman, Mountain, New American, Northwest, Ranch, Traditional

Main Level

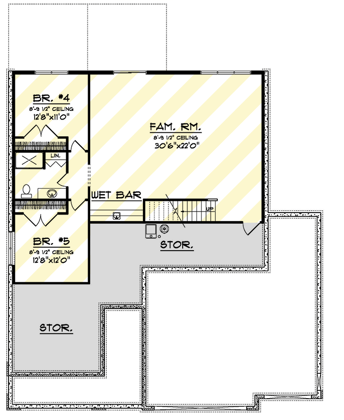
Optional Lower Level ($ Paid Option)

Plan 890107AH: One-Level Traditional House Plan with Split Beds - 2005 Sq FT - Floor Plan - Optional Lower Level ($ Paid Option) - Craftsman, Mountain, New American, Northwest, Ranch, Traditional

Optional Lower Level ($ Paid Option)

View Cost to Build Report Demo
A Cost to Build Report can be customized to help you estimate your construction costs.
The cost to build report provides a cost estimate based on location, home complexity, and features. After receiving the report (please allow 24 - 48 hours for delivery), you can customize it to align with your preferred building materials and plan features.
Cost to Build Reports are customizable and available for download for 60 days after delivery.
To receive your free modification quote within 1 to 3 business days, please fill out the form below and be as descriptive as possible.
Material Quality
Better (Recommended)

Foundation
Select...

Build Lot Postal Code