Exclusive

_1726238763.gif)
_1726238767.gif)
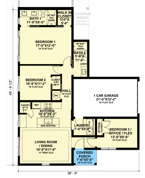
Total Heated Area
4,640 sq. ft.
1st Floor
4,640 sq. ft.
Porch, Front
38 sq. ft.
Bedrooms
10
Full bathrooms
8
Standard Foundations
Monolithic Slab, Slab
Exterior Walls
2x6
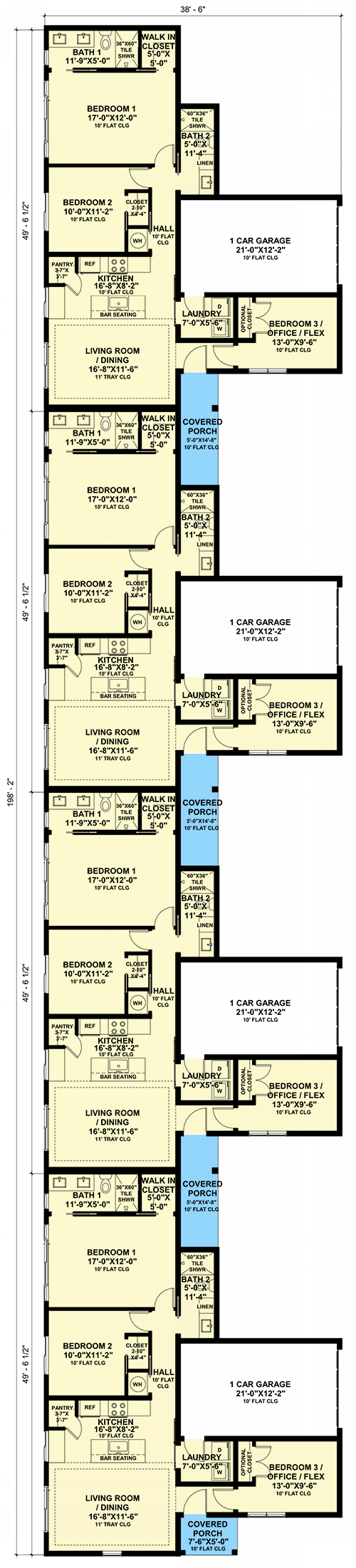
Width
38' 6"
Depth
198' 2"
Max Ridge Height
20' 0"
Type
Attached
Area
1016 sq. ft.
Count
4 Cars
Entry Location
Side
First Floor
10'
Room
Ceiling Type
Height
Living Room
Tray
11' 0''
Dining Room
Tray
11' 0''
Primary Pitch
10 on 12
Framing Type
Truss
Total Heated Area
4,640 sq. ft.
1st Floor
4,640 sq. ft.
Porch, Front
38 sq. ft.
Bedrooms
10
Full bathrooms
8
Standard Foundations
Monolithic Slab, Slab
Exterior Walls
2x6
Width
38' 6"
Depth
198' 2"
Max Ridge Height
20' 0"
Type
Attached
Area
1016 sq. ft.
Count
4 Cars
Entry Location
Side
First Floor
10'
Room
Ceiling Type
Height
Living Room
Tray
11' 0''
Dining Room
Tray
11' 0''
Primary Pitch
10 on 12
Framing Type
Truss