

Total Heated Area
3,281 sq. ft.
1st Floor
3,281 sq. ft.
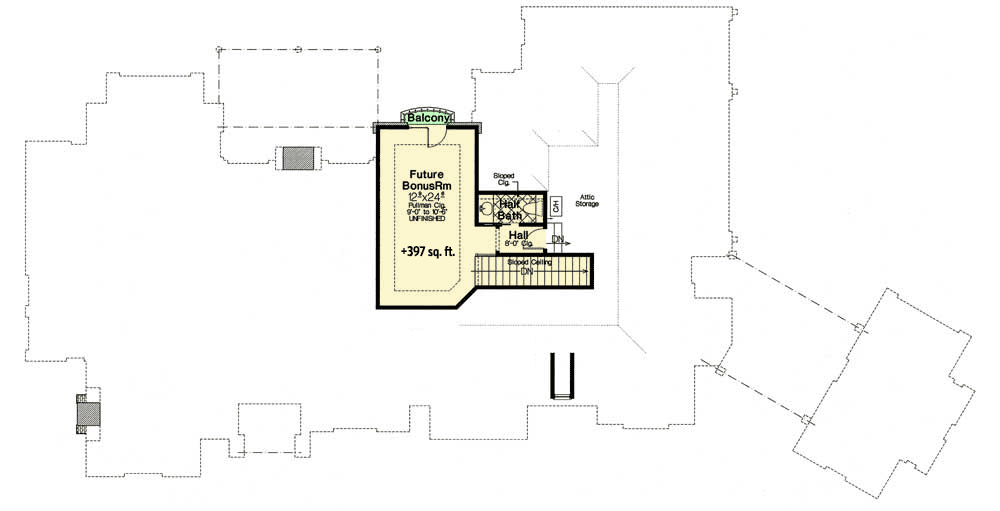
Bonus
397 sq. ft.
Bedrooms
1, 2, 3, or 4
Full bathrooms
1 or 2
Half bathrooms
1
Standard Foundations
Slab
Exterior Walls
2x4
Width
125' 0"
Depth
65' 0"
Max Ridge Height
32' 0"
Type
Detached, Attached
Area
1191 sq. ft.
Count
1, 2, or 3 Cars
Entry Location
Side, Courtyard
First Floor
9'
Room
Ceiling Type
Height
Study
Cathedral
0' 0''
Master Bedroom
Pullman
10' 0''
Primary Pitch
12 on 12
Framing Type
Stick
Total Heated Area
3,281 sq. ft.
1st Floor
3,281 sq. ft.
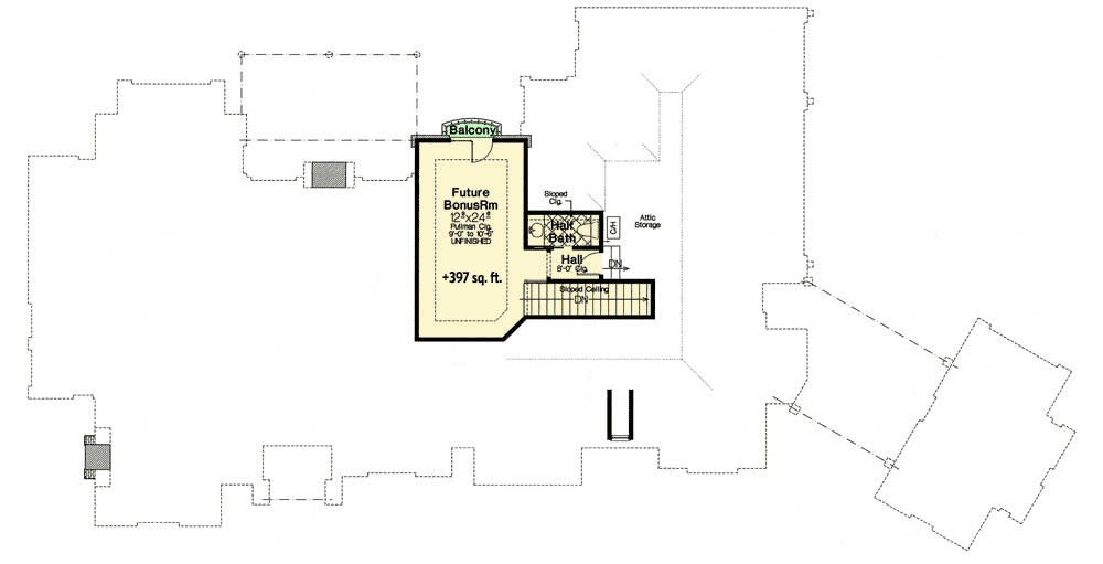
Bonus
397 sq. ft.
Bedrooms
1, 2, 3, or 4
Full bathrooms
1 or 2
Half bathrooms
1
Standard Foundations
Slab
Exterior Walls
2x4
Width
125' 0"
Depth
65' 0"
Max Ridge Height
32' 0"
Type
Detached, Attached
Area
1191 sq. ft.
Count
1, 2, or 3 Cars
Entry Location
Side, Courtyard
First Floor
9'
Room
Ceiling Type
Height
Study
Cathedral
0' 0''
Master Bedroom
Pullman
10' 0''
Primary Pitch
12 on 12
Framing Type
Stick