LogoLogo TaglineLogo Tagline
Loading...
Plan 490117NAH

One-Story Transitional House Plan with Flex Home Office - 2612 Sq Ft

Heated S.F.
2,612
Beds
3 - 5
Baths
2.5 - 3.5
Stories
1
Cars
3

Floor Plan

Plan 490117NAH

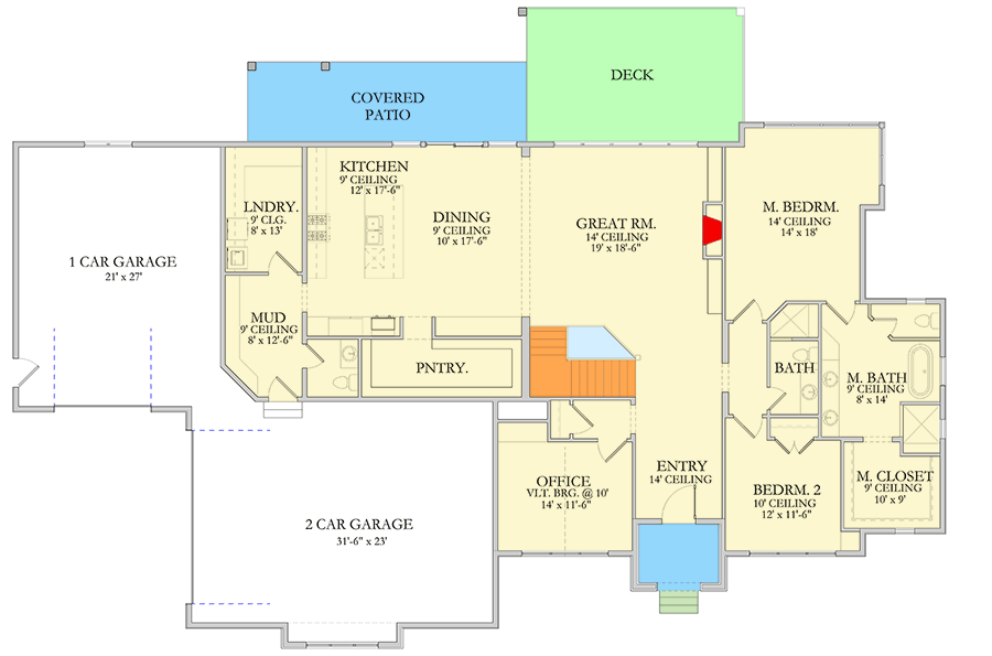
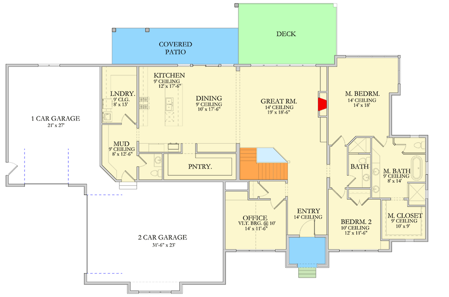
Main Level
Main Level
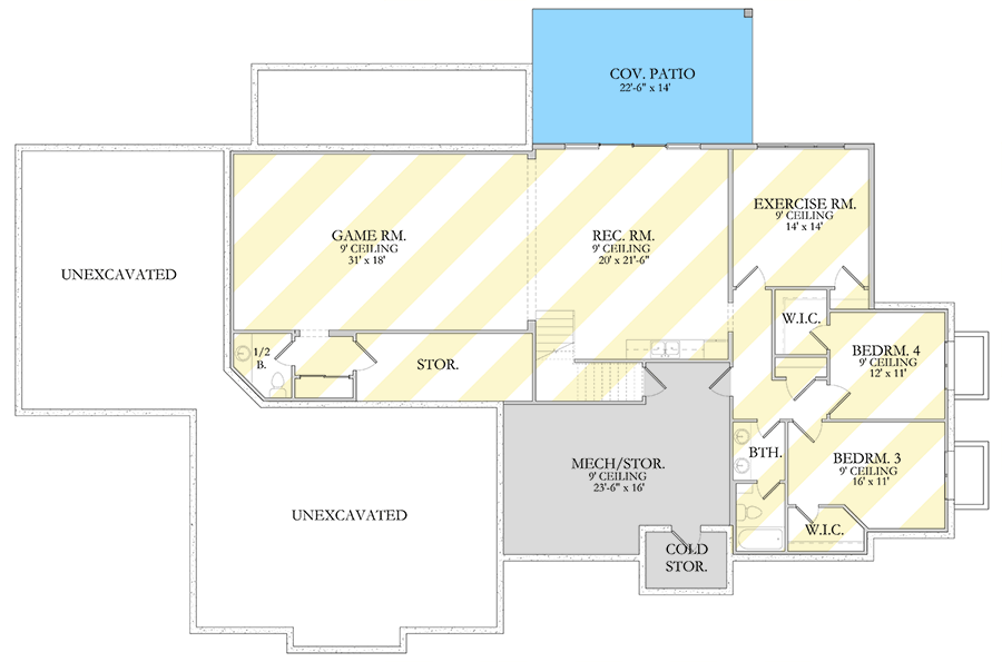
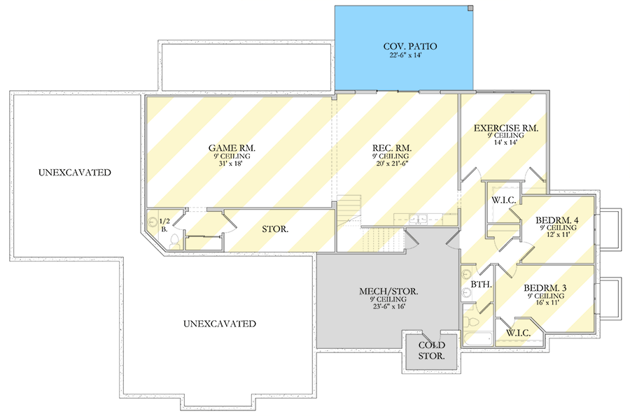
Optional Lower Level
Optional Lower Level

Plan 490117NAH

M-F 9am-5pm EST |

1-203-761-8500

Main Level

Plan 490117NAH: One-Story Transitional House Plan with Flex Home Office - 2612 Sq Ft - Floor Plan - Main Level - European, Transitional

Optional Lower Level

Plan 490117NAH: One-Story Transitional House Plan with Flex Home Office - 2612 Sq Ft - Floor Plan - Optional Lower Level - European, Transitional

Plan Details

  • This stunning Transitional house plan combines timeless elegance with modern functionality. 
  • The open-concept main floor connects the kitchen, dining room, and living room, creating an inviting space perfect for family gatherings and entertaining. 
  • The primary suite, conveniently located on the main level, boasts a spacious walk-in closet, along with an additional bedroom and a flexible office space.
  • The home also includes a basement expansion option, adding 2,517 square feet that includes a game room, rec room, cold storage, two more bedrooms, and ample storage, making it perfect for families seeking flexibility and extra space. 

What's Included

  • Cover Sheet: Shows the front elevation and typical notes and requirements.
  • Exterior Elevations: Shows the front, rear and sides of the home including exterior materials, details and measurement
  • Floor Plans: Shows the placement of walls and the dimensions for rooms, doors, windows, stairways, etc. for each floor
  • Electrical Plans: Shows the location of outlets, fixtures and switches. They are shown as a separate sheet to make the floor plans more legible.
  • Foundation Plans: will include a basement, crawlspace or slab depending on what is available for that home plan. (Please refer to the home plan's details sheet to see what foundation options are available for a specific home plan.) The foundation plan details the layout and construction of the foundation.
  • Roof Plan
  • Building Section(s)
  • Typical Wall Details and Section(s)
  • Typical Stair Detail and Section

What's Not Included

  • Architectural or Engineering Stamp - handled locally if required
  • Site Plan - handled locally when required
  • Mechanical Drawings (location of heating and air equipment and duct work) - your subcontractors handle this
  • Plumbing Drawings (drawings showing the actual plumbing pipe sizes and locations) - your subcontractors handle this
  • Energy calculations - handled locally when required

Starting at

Loading...
Price Match Guarantee
What's included?

FORMAT & LICENSE

Choose an option

$0

Not sure what to choose?

Pointer link icon

FOUNDATION

Choose an option

+$0

OPTIONS

Choose Additional Options

+$0

Loading...

Modify this Plan

Receive a free modification quote within 3 business days.

Loading...

Start with a Cost Report

Calculate the cost to build & furnish your home.

Loading...
Loading...

Square Footage Breakdown

Total Heated Area

2,612 sq. ft.

1st Floor

2,612 sq. ft.

Optional Lower Level

2,517 sq. ft.

Beds/Baths

Bedrooms

3, 4, or 5

Full bathrooms

2 or 3

Half bathrooms

1 or 2

Foundation Type

Standard Foundations

Walkout

Exterior Walls

Exterior Walls

2x6

Dimensions

Width

97' 0"

Depth

54' 6"

Garage

Type

Attached

Area

1382 sq. ft.

Count

3 Cars

Entry Location

Front, Side

Architectural Style

European

Square Footage Breakdown

Total Heated Area

2,612 sq. ft.

1st Floor

2,612 sq. ft.

Optional Lower Level

2,517 sq. ft.

Beds/Baths

Bedrooms

3, 4, or 5

Full bathrooms

2 or 3

Half bathrooms

1 or 2

Foundation Type

Standard Foundations

Walkout

Exterior Walls

Exterior Walls

2x6

Dimensions

Width

97' 0"

Depth

54' 6"

Garage

Type

Attached

Area

1382 sq. ft.

Count

3 Cars

Entry Location

Front, Side

Architectural Style

* Please note that all sale prices and promotions featured on our website are subject to change without prior notice. While we strive to provide accurate and up-to-date information, occasional discrepancies may occur due to factors beyond our control. We encourage you to verify all details, including pricing and availability, before making any purchase. Exclusions or restrictions may apply to specific promotions. We reserve the right to modify or cancel any sale at our discretion. Thank you for your understanding and happy shopping!Let's go back to the top.