Exclusive




Total Heated Area
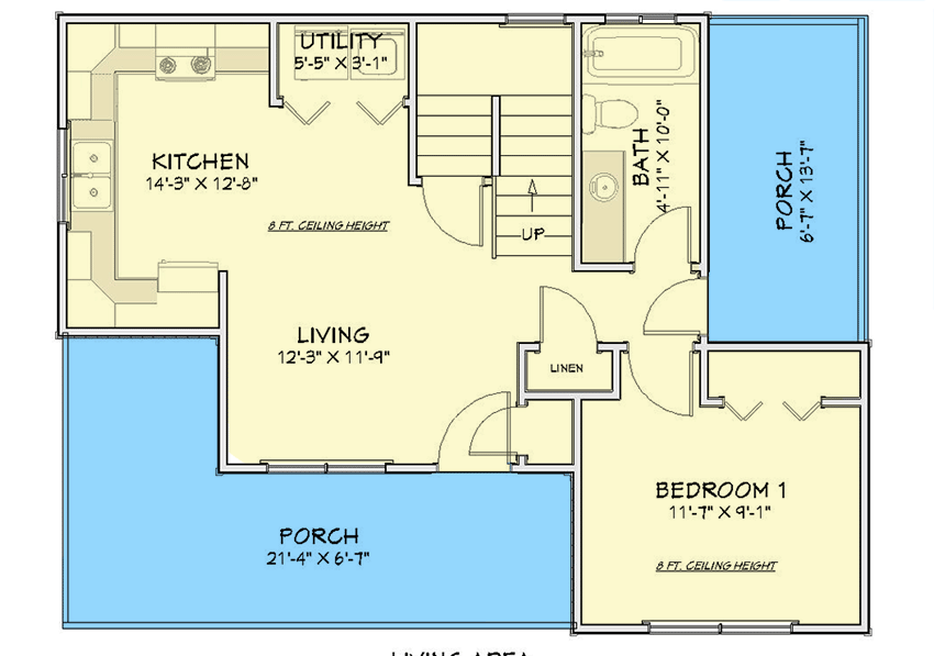
750 sq. ft.
1st Floor
592 sq. ft.
2nd Floor
158 sq. ft.
Porch, Front
181 sq. ft.
Porch, Rear
91 sq. ft.
Bedrooms
2
Full bathrooms
1
Standard Foundations
Slab
Exterior Walls
2x4
Optional Type(s)
2x6
Width
33' 0"
Depth
25' 8"
Max Ridge Height
20' 0"
First Floor
8'
Second Floor
11'
Primary Pitch
9 on 12
Secondary Pitch
3 on 12
Framing Type
Stick
Total Heated Area
750 sq. ft.
1st Floor
592 sq. ft.
2nd Floor
158 sq. ft.
Porch, Front
181 sq. ft.
Porch, Rear
91 sq. ft.
Bedrooms
2
Full bathrooms
1
Standard Foundations
Slab
Exterior Walls
2x4
Optional Type(s)
2x6
Width
33' 0"
Depth
25' 8"
Max Ridge Height
20' 0"
First Floor
8'
Second Floor
11'
Primary Pitch
9 on 12
Secondary Pitch
3 on 12
Framing Type
Stick