Exclusive


Total Heated Area
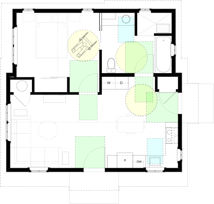
681 sq. ft.
1st Floor
681 sq. ft.
Porch, Front
23 sq. ft.
Bedrooms
1
Full bathrooms
1
Standard Foundations
Slab
Exterior Walls
2x6
Width
27' 6"
Depth
25' 6"
Max Ridge Height
15' 7"
Primary Pitch
8 on 12
Secondary Pitch
3 on 12
Total Heated Area
681 sq. ft.
1st Floor
681 sq. ft.
Porch, Front
23 sq. ft.
Bedrooms
1
Full bathrooms
1
Standard Foundations
Slab
Exterior Walls
2x6
Width
27' 6"
Depth
25' 6"
Max Ridge Height
15' 7"
Primary Pitch
8 on 12
Secondary Pitch
3 on 12