Exclusive

Total Heated Area
0 sq. ft.
Bedrooms
0
Full bathrooms
1
Standard Foundations
Slab
Exterior Walls
2x6
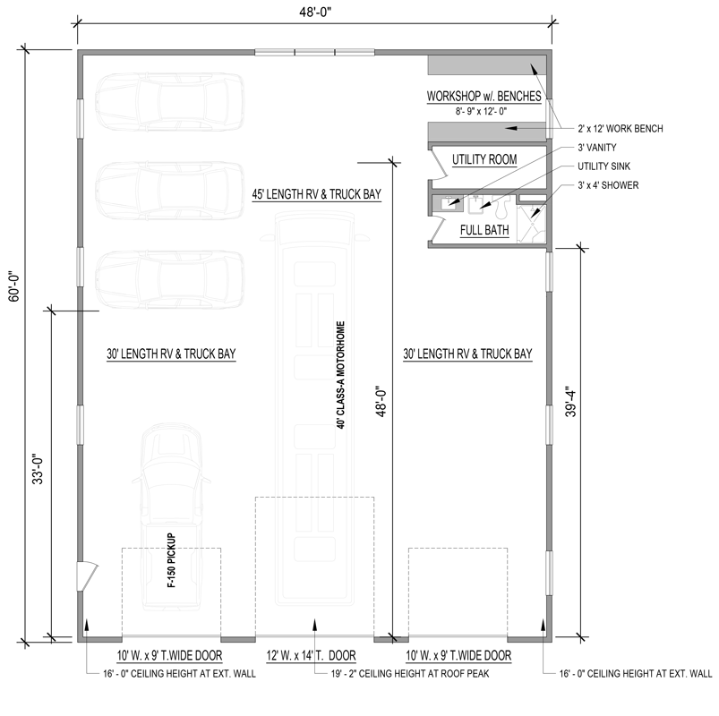
Width
48' 0"
Depth
60' 0"
Max Ridge Height
26' 0"
Type
Detached, RV Garage
Area
2880 sq. ft.
Count
3 Cars
Entry Location
Front
Primary Pitch
4 on 12
Framing Type
Truss
Total Heated Area
0 sq. ft.
Bedrooms
0
Full bathrooms
1
Standard Foundations
Slab
Exterior Walls
2x6
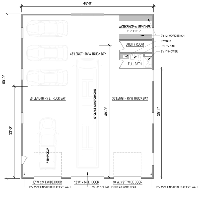
Width
48' 0"
Depth
60' 0"
Max Ridge Height
26' 0"
Type
Detached, RV Garage
Area
2880 sq. ft.
Count
3 Cars
Entry Location
Front
Primary Pitch
4 on 12
Framing Type
Truss