LogoLogo TaglineLogo Tagline
Loading...
Plan 680633VR

Sleek Contemporary 2-Bedroom House Plan with 4-Car Garage and Balcony

Heated S.F.
1,914
Beds
2
Baths
2.5
Stories
2
Cars
4

Floor Plan

Plan 680633VR

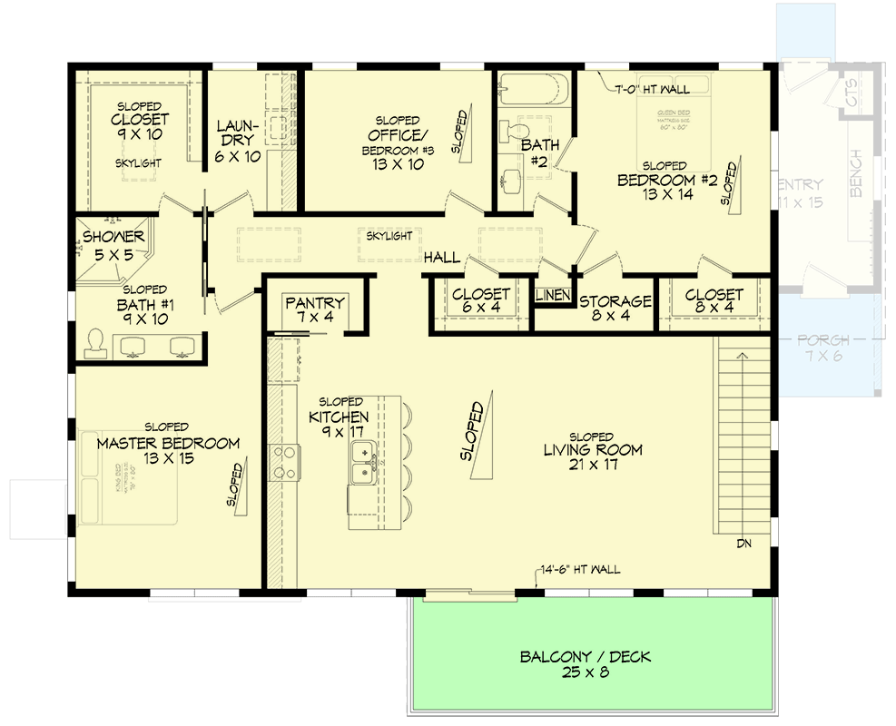
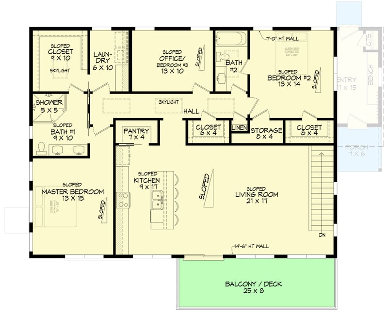
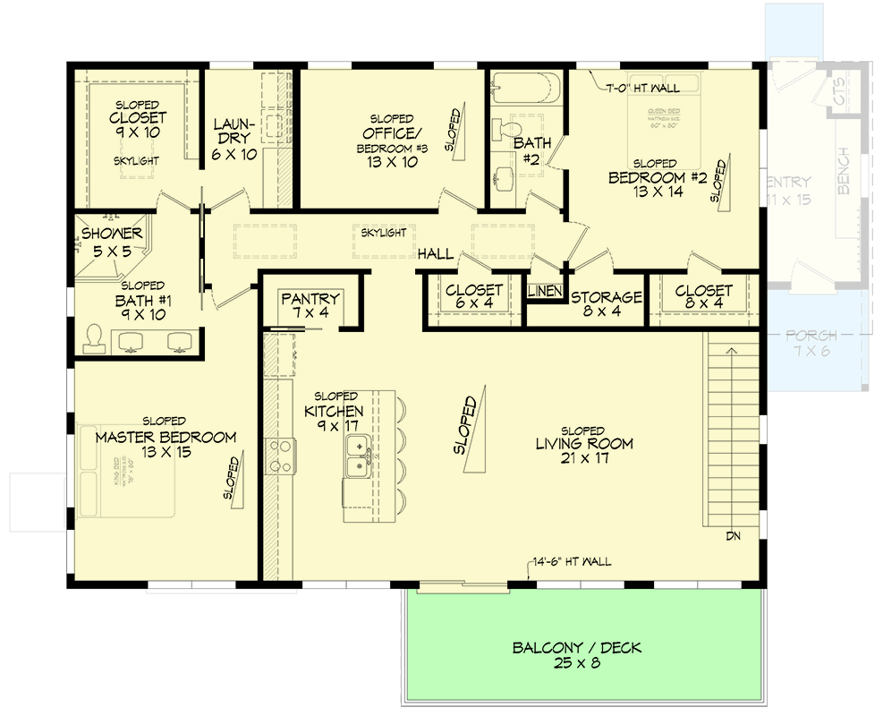
Main Level
Main Level
2nd Floor
2nd Floor

Plan 680633VR

M-F 9am-5pm EST |

1-203-761-8500

Main Level

Plan 680633VR: Sleek Contemporary 2-Bedroom House Plan with 4-Car Garage and Balcony - Floor Plan - Main Level

2nd Floor

Plan 680633VR: Sleek Contemporary 2-Bedroom House Plan with 4-Car Garage and Balcony - Floor Plan - 2nd Floor

Plan Details

  • This striking 1,914 sq. ft. contemporary house plan features 2 bedrooms, 2.5 bathrooms, and an impressive 1,642 sq. ft. 4-car attached garage, presenting a bold modern aesthetic.
  • Upon entering this modern abode, you're greeted by a convenient mudroom area on the first floor, providing a seamless transition from the expansive 4-car garage, with the main living spaces unfolding on the upper level.
  • The heart of the home resides on the second floor, where an open-concept design seamlessly connects the kitchen, dining, and a dramatic two-story great room, perfect for both everyday living and sophisticated entertaining.
  • The luxurious master suite, privately situated upstairs, offers a serene retreat with direct access to the laundry room, while the second bedroom is thoughtfully split for enhanced privacy and comfort.
  • Beyond the living areas, the plan incorporates a dedicated home office for productivity and a substantial workshop integrated within the generous 4-car garage, catering to hobbies and practical needs.
  • Enjoy the outdoors from the inviting 43 sq. ft. front porch or step out onto the expansive 200 sq. ft. balcony/veranda on the second floor, offering elevated views and a perfect spot for morning coffee or evening relaxation.

What's Included

  • Floor Plans: House plan drawings indicating dimensions for construction
  • Roof Plan: Drawings indicating roof slopes and unique conditions
  • Exterior Elevations: Drawings showing appearance and the types of materials used for the exterior finish and trim
  • Building Sections: Drawings cut through important locations in the structure
  • Construction Details: Drawings showing specific construction of building elements at a large scale
  • Kitchen and bath elevations (excluded on garage plans)
  • Electrical Plans: Basic electrical layout (suggested locations of fixtures, switches and outlets)
  • Foundation Plan: Dimensioned drawings describing specific foundation conditions for the structure
  • Building license: A single-use license for construction at one location only

View Sample Plan

What's Not Included

  • Architectural or Engineering Stamp - handled locally if required
  • Site Plan - handled locally when required
  • Mechanical Drawings (location of heating and air equipment and duct work) - your subcontractors handle this
  • Plumbing Drawings (drawings showing the actual plumbing pipe sizes and locations) - your subcontractors handle this
  • Energy calculations - handled locally when required

Starting at

Loading...
Price Match Guarantee
What's included?

FORMAT & LICENSE

Choose an option

$0

Not sure what to choose?

Pointer link icon

FOUNDATION

Choose an option

+$0

OPTIONS

Choose Additional Options

+$0

Loading...

Modify this Plan

Receive a free modification quote within 3 business days.

Loading...

Start with a Cost Report

Calculate the cost to build & furnish your home.

Loading...
Loading...

Square Footage Breakdown

Total Heated Area

1,914 sq. ft.

1st Floor

192 sq. ft.

2nd Floor

1,722 sq. ft.

Porch, Front

43 sq. ft.

Balcony / Veranda

200 sq. ft.

Beds/Baths

Bedrooms

2

Full bathrooms

2

Half bathrooms

1

Foundation Type

Standard Foundations

Slab

Exterior Walls

Exterior Walls

2x6

Dimensions

Width

55' 0"

Depth

36' 0"

Max Ridge Height

30' 5"

Garage

Type

Standard, Attached

Area

1642 sq. ft.

Count

4 Cars

Entry Location

Front

Ceiling Heights

First Floor

12'

Roof Details

Primary Pitch

2.5 on 12

Framing Type

Stick

Square Footage Breakdown

Total Heated Area

1,914 sq. ft.

1st Floor

192 sq. ft.

2nd Floor

1,722 sq. ft.

Porch, Front

43 sq. ft.

Balcony / Veranda

200 sq. ft.

Beds/Baths

Bedrooms

2

Full bathrooms

2

Half bathrooms

1

Foundation Type

Standard Foundations

Slab

Exterior Walls

Exterior Walls

2x6

Dimensions

Width

55' 0"

Depth

36' 0"

Max Ridge Height

30' 5"

Garage

Type

Standard, Attached

Area

1642 sq. ft.

Count

4 Cars

Entry Location

Front

Ceiling Heights

First Floor

12'

Roof Details

Primary Pitch

2.5 on 12

Framing Type

Stick

* Please note that all sale prices and promotions featured on our website are subject to change without prior notice. While we strive to provide accurate and up-to-date information, occasional discrepancies may occur due to factors beyond our control. We encourage you to verify all details, including pricing and availability, before making any purchase. Exclusions or restrictions may apply to specific promotions. We reserve the right to modify or cancel any sale at our discretion. Thank you for your understanding and happy shopping!Let's go back to the top.