Exclusive

Total Heated Area
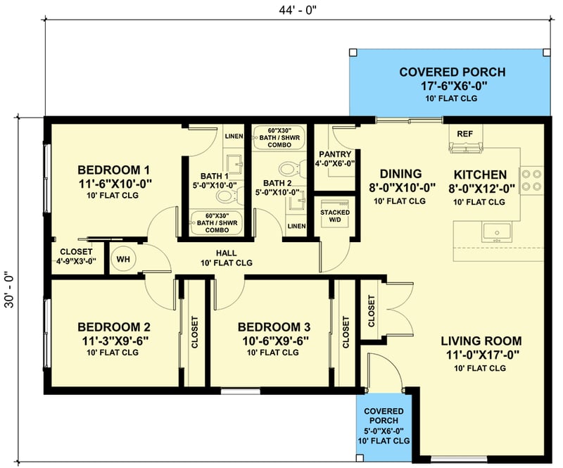
1,128 sq. ft.
1st Floor
1,128 sq. ft.
Porch, Front
30 sq. ft.
Porch, Rear
105 sq. ft.
Porch, Combined
135 sq. ft.
Bedrooms
3
Full bathrooms
2
Standard Foundations
Monolithic Slab, Slab
Exterior Walls
2x6
Width
44' 0"
Depth
30' 0"
Max Ridge Height
17' 10"
First Floor
10'
Primary Pitch
10 on 12
Secondary Pitch
6 on 12
Framing Type
Stick Or Truss
Total Heated Area
1,128 sq. ft.
1st Floor
1,128 sq. ft.
Porch, Front
30 sq. ft.
Porch, Rear
105 sq. ft.
Porch, Combined
135 sq. ft.
Bedrooms
3
Full bathrooms
2
Standard Foundations
Monolithic Slab, Slab
Exterior Walls
2x6
Width
44' 0"
Depth
30' 0"
Max Ridge Height
17' 10"
First Floor
10'
Primary Pitch
10 on 12
Secondary Pitch
6 on 12
Framing Type
Stick Or Truss