

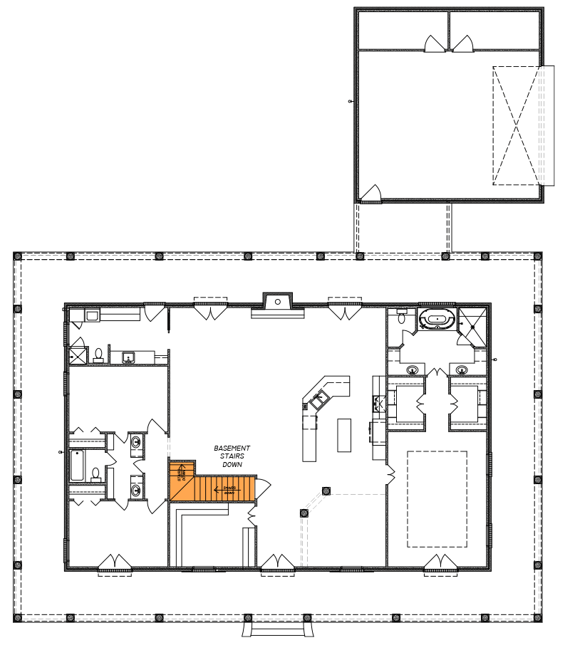
Total Heated Area
2,560 sq. ft.
1st Floor
2,560 sq. ft.
Porch, Combined
2,032 sq. ft.
Bedrooms
3
Full bathrooms
3
Standard Foundations
Monolithic Slab
Exterior Walls
2x4
Optional Type(s)
2x6
Width
80' 0"
Depth
93' 0"
Type
Attached
Area
812 sq. ft.
Count
2 Cars
Entry Location
Side
First Floor
9'
Framing Type
Stick
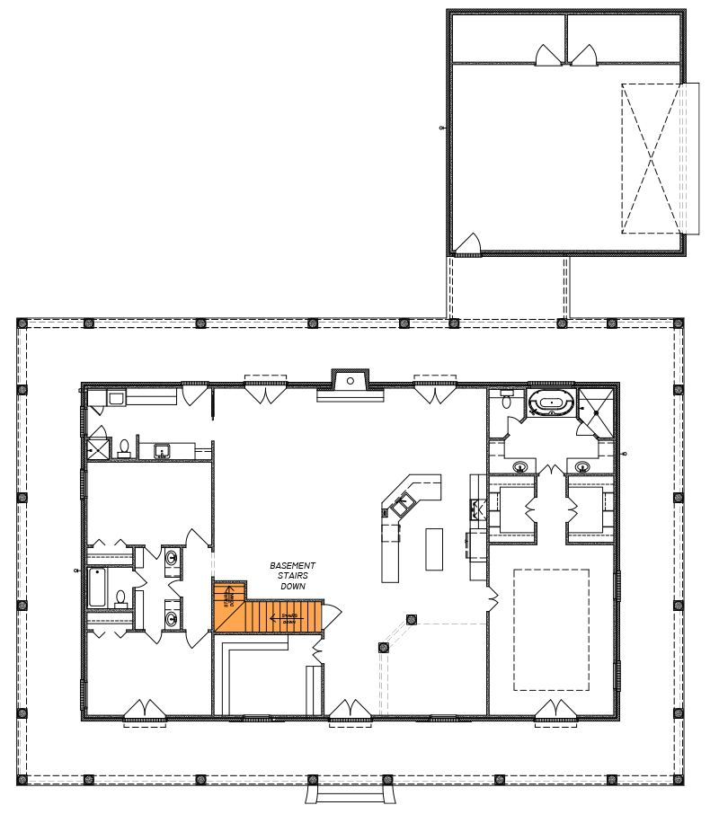
Total Heated Area
2,560 sq. ft.
1st Floor
2,560 sq. ft.
Porch, Combined
2,032 sq. ft.
Bedrooms
3
Full bathrooms
3
Standard Foundations
Monolithic Slab
Exterior Walls
2x4
Optional Type(s)
2x6
Width
80' 0"
Depth
93' 0"
Type
Attached
Area
812 sq. ft.
Count
2 Cars
Entry Location
Side
First Floor
9'
Framing Type
Stick