

Total Heated Area
2,381 sq. ft.
1st Floor
2,381 sq. ft.
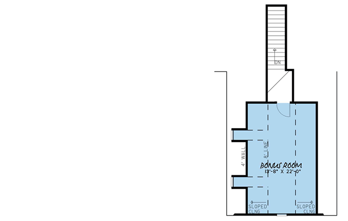
Bonus
340 sq. ft.
Porch, Combined
344 sq. ft.
Bedrooms
2 or 3
Full bathrooms
2
Standard Foundations
Crawl, Slab
Exterior Walls
2x4
Optional Type(s)
2x6
Width
65' 0"
Depth
80' 0"
Max Ridge Height
30' 0"
Type
Attached
Area
698 sq. ft.
Count
3 Cars
Entry Location
Front, Courtyard
First Floor
9'
Second Floor
8'
Primary Pitch
12 on 12
Framing Type
Stick
Total Heated Area
2,381 sq. ft.
1st Floor
2,381 sq. ft.
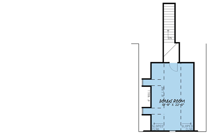
Bonus
340 sq. ft.
Porch, Combined
344 sq. ft.
Bedrooms
2 or 3
Full bathrooms
2
Standard Foundations
Crawl, Slab
Exterior Walls
2x4
Optional Type(s)
2x6
Width
65' 0"
Depth
80' 0"
Max Ridge Height
30' 0"
Type
Attached
Area
698 sq. ft.
Count
3 Cars
Entry Location
Front, Courtyard
First Floor
9'
Second Floor
8'
Primary Pitch
12 on 12
Framing Type
Stick