

Total Heated Area
0 sq. ft.
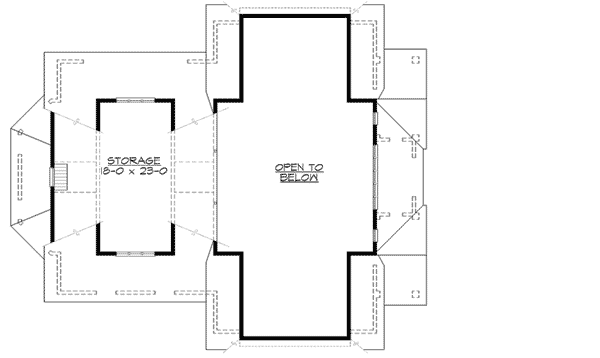
Storage
610 sq. ft.
Bedrooms
0
Standard Foundations
Slab
Exterior Walls
2x6
Width
61' 0"
Depth
48' 0"
Max Ridge Height
26' 6"
Type
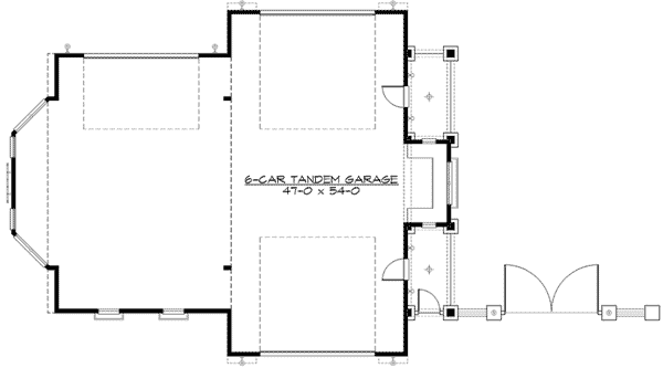
Detached, RV Garage
Area
2255 sq. ft.
Count
6 Cars
Entry Location
Rear
First Floor
11'
Second Floor
7'
Primary Pitch
6 on 12
Framing Type
Stick and Truss
Total Heated Area
0 sq. ft.
Storage
610 sq. ft.
Bedrooms
0
Standard Foundations
Slab
Exterior Walls
2x6
Width
61' 0"
Depth
48' 0"
Max Ridge Height
26' 6"
Type
Detached, RV Garage
Area
2255 sq. ft.
Count
6 Cars
Entry Location
Rear
First Floor
11'
Second Floor
7'
Primary Pitch
6 on 12
Framing Type
Stick and Truss