


Total Heated Area
2,986 sq. ft.
1st Floor
2,331 sq. ft.
2nd Floor
655 sq. ft.
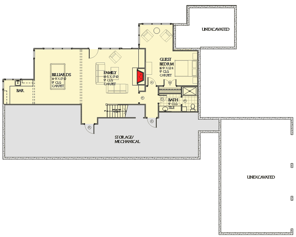
Optional Lower Level
1,326 sq. ft.
Screened Porch
207 sq. ft.
Bedrooms
3 or 4
Full bathrooms
2 or 3
Half bathrooms
1
Standard Foundations
Basement, Walkout
Exterior Walls
2x4
Width
94' 0"
Depth
74' 2"
Type
Attached
Area
876 sq. ft.
Count
3 Cars
Entry Location
Side
First Floor
9'
Second Floor
8'
Room
Ceiling Type
Height
Living Room
Coffered
13' 0''
Master Bedroom
10' 0''
Screened Porch
Vaulted
0' 0''
Total Heated Area
2,986 sq. ft.
1st Floor
2,331 sq. ft.
2nd Floor
655 sq. ft.
Optional Lower Level
1,326 sq. ft.
Screened Porch
207 sq. ft.
Bedrooms
3 or 4
Full bathrooms
2 or 3
Half bathrooms
1
Standard Foundations
Basement, Walkout
Exterior Walls
2x4
Width
94' 0"
Depth
74' 2"
Type
Attached
Area
876 sq. ft.
Count
3 Cars
Entry Location
Side
First Floor
9'
Second Floor
8'
Room
Ceiling Type
Height
Living Room
Coffered
13' 0''
Master Bedroom
10' 0''
Screened Porch
Vaulted
0' 0''