
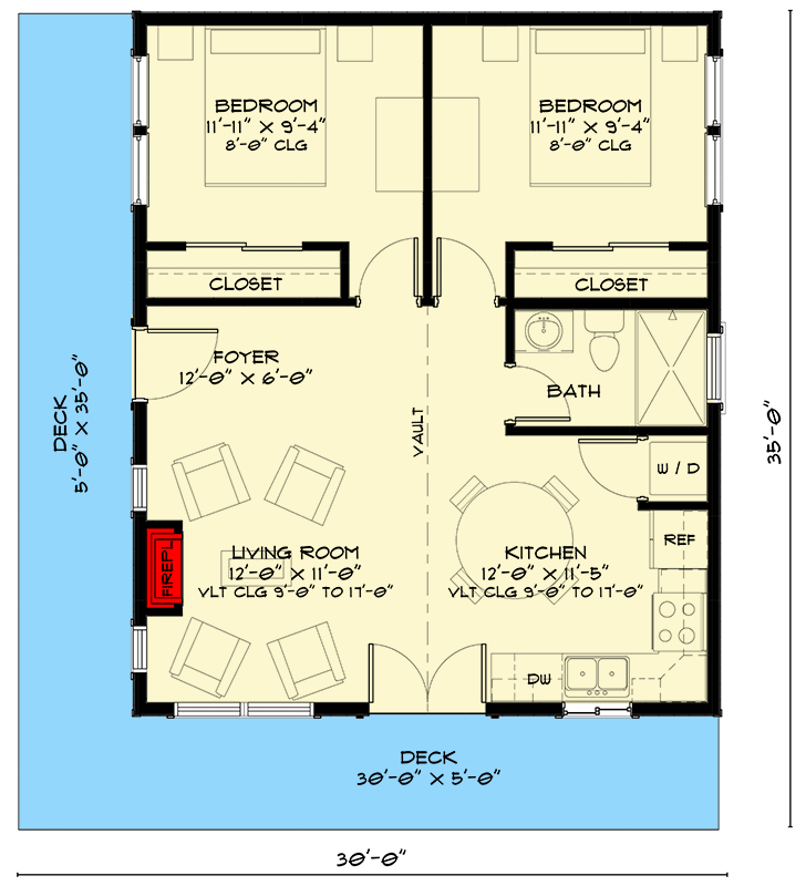
Total Heated Area
753 sq. ft.
1st Floor
753 sq. ft.
Deck
302 sq. ft.
Bedrooms
2
Full bathrooms
1
Standard Foundations
Crawl
Exterior Walls
2x6
Width
30' 0"
Depth
35' 0"
Max Ridge Height
21' 0"
First Floor
8'
Room
Ceiling Type
Height
Living Room
Vaulted
9' 0''
Primary Pitch
9 on 12
Total Heated Area
753 sq. ft.
1st Floor
753 sq. ft.
Deck
302 sq. ft.
Bedrooms
2
Full bathrooms
1
Standard Foundations
Crawl
Exterior Walls
2x6
Width
30' 0"
Depth
35' 0"
Max Ridge Height
21' 0"
First Floor
8'
Room
Ceiling Type
Height
Living Room
Vaulted
9' 0''
Primary Pitch
9 on 12