

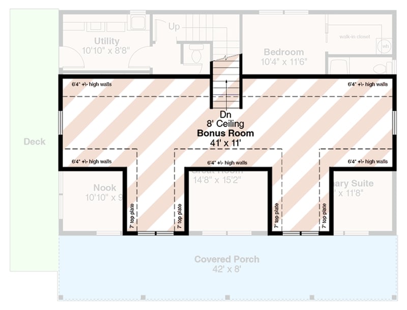
Total Heated Area
1,176 sq. ft.
1st Floor
1,176 sq. ft.
Bonus
618 sq. ft.
Bedrooms
2
Full bathrooms
1
Half bathrooms
1
Standard Foundations
Crawl
Exterior Walls
2x6
Width
42' 0"
Depth
36' 0"
Max Ridge Height
23' 2"
Second Floor
8'
Primary Pitch
9 on 12
Framing Type
Stick And Truss
Total Heated Area
1,176 sq. ft.
1st Floor
1,176 sq. ft.
Bonus
618 sq. ft.
Bedrooms
2
Full bathrooms
1
Half bathrooms
1
Standard Foundations
Crawl
Exterior Walls
2x6
Width
42' 0"
Depth
36' 0"
Max Ridge Height
23' 2"
Second Floor
8'
Primary Pitch
9 on 12
Framing Type
Stick And Truss