LogoLogo TaglineLogo Tagline
Loading...
Plan 31589GF

Two-Story Cottage Plan with 3 Bedrooms - 1269 Sq Ft

Heated S.F.
1,269
Beds
3
Baths
2
Stories
2

Floor Plan

Plan 31589GF

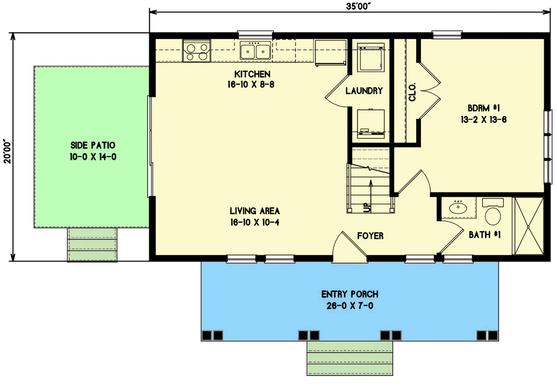
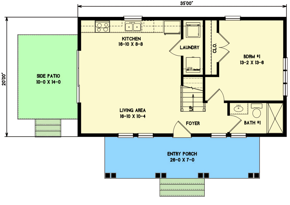
Main Level
Main Level
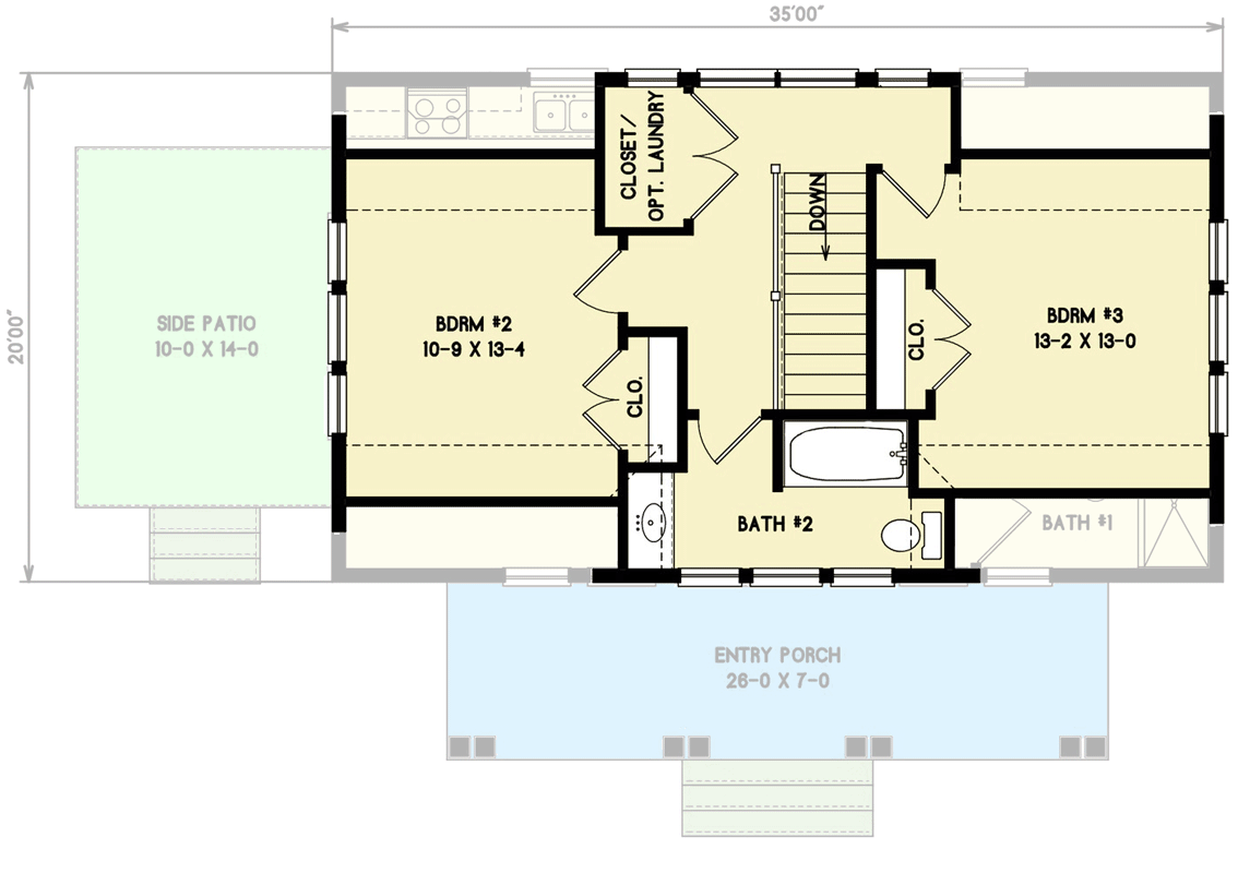
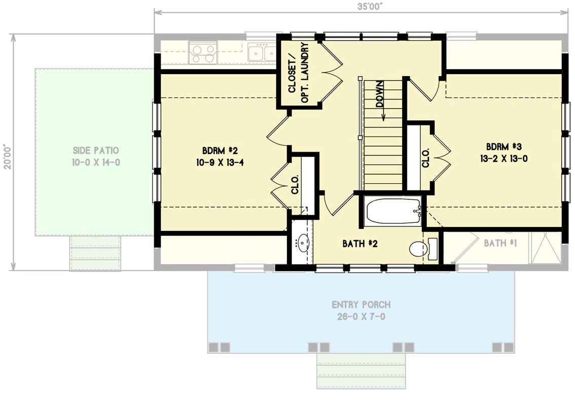
2nd Floor
2nd Floor

Plan 31589GF

M-F 9am-5pm EST |

1-203-761-8500

Main Level

Plan 31589GF: Two-Story Cottage Plan with 3 Bedrooms - 1269 Sq Ft - Floor Plan - Main Level - Cabin, Cottage, Country, Farmhouse, Modern Farmhouse, New American, Traditional, Vacation

2nd Floor

Plan 31589GF: Two-Story Cottage Plan with 3 Bedrooms - 1269 Sq Ft - Floor Plan - 2nd Floor - Cabin, Cottage, Country, Farmhouse, Modern Farmhouse, New American, Traditional, Vacation

Plan Details

  • A cross-gable, metal roof caps this two-story cottage house plan, which is bordered on 3 sides by a porch or deck to extend the living space outdoors.
  • The main floor consists of your family, dining, and kitchen areas; open to one another for the well-loved open concept design.
  • A corner fireplace warms the gathering spaces, while a sliding door encourages you to enjoy the side sundeck. 
  • A bedroom with a pair of sliding doors that lead to a rear porch, and a full bath complete the main level.
  • Two sizable bedrooms are located upstairs, along with a full bath and laundry closet.

What's Included

  • Cover Sheet: Shows typical notes and requirements.
  • Exterior Elevations: Shows the front, rear and sides of the home including exterior materials, details and measurement
  • Floor Plans: Shows the placement of walls and the dimensions for rooms, doors, windows, stairways, etc. for each floor
  • Foundation Plan: will include a basement, crawlspace or slab depending on what is available for that home plan. (Please refer to the home plan's details sheet to see what foundation options are available for a specific home plan.) The foundation plan details the layout and construction of the foundation.
  • Typical wall section
  • Typical stair section (if applicable)
  • Typical shelving and cabinet details

What's Not Included

  • Architectural or Engineering Stamp - handled locally if required
  • Site Plan - handled locally when required
  • Mechanical Drawings (location of heating and air equipment and duct work) - handled by your subcontractors
  • Plumbing Drawings (drawings showing the actual plumbing pipe sizes and locations) - handled by your subcontractors
  • Energy calculations - handled locally when required
  • Electrical Layout - handled by your builder and subcontractor

Starting at

Loading...
Price Match Guarantee
What's included?

FORMAT & LICENSE

Choose an option

$0

Not sure what to choose?

Pointer link icon

FOUNDATION

Choose an option

+$0

OPTIONS

Choose Additional Options

+$0

Loading...

Modify this Plan

Receive a free modification quote within 3 business days.

Loading...

Start with a Cost Report

Calculate the cost to build & furnish your home.

Loading...
Loading...

Square Footage Breakdown

Total Heated Area

1,269 sq. ft.

1st Floor

700 sq. ft.

2nd Floor

569 sq. ft.

Porch, Combined

182 sq. ft.

Deck

48 sq. ft.

Covered Patio

140 sq. ft.

Beds/Baths

Bedrooms

3

Full bathrooms

2

Foundation Type

Standard Foundations

Crawl

Exterior Walls

Exterior Walls

2x4

Dimensions

Width

35' 0"

Depth

20' 0"

Max Ridge Height

26' 4"

Ceiling Heights

First Floor

9'

Second Floor

8'

Roof Details

Primary Pitch

12 on 12

Secondary Pitch

6 on 12

Framing Type

Stick

Architectural Style

Cabin

Square Footage Breakdown

Total Heated Area

1,269 sq. ft.

1st Floor

700 sq. ft.

2nd Floor

569 sq. ft.

Porch, Combined

182 sq. ft.

Deck

48 sq. ft.

Covered Patio

140 sq. ft.

Beds/Baths

Bedrooms

3

Full bathrooms

2

Foundation Type

Standard Foundations

Crawl

Exterior Walls

Exterior Walls

2x4

Dimensions

Width

35' 0"

Depth

20' 0"

Max Ridge Height

26' 4"

Ceiling Heights

First Floor

9'

Second Floor

8'

Roof Details

Primary Pitch

12 on 12

Secondary Pitch

6 on 12

Framing Type

Stick

* Please note that all sale prices and promotions featured on our website are subject to change without prior notice. While we strive to provide accurate and up-to-date information, occasional discrepancies may occur due to factors beyond our control. We encourage you to verify all details, including pricing and availability, before making any purchase. Exclusions or restrictions may apply to specific promotions. We reserve the right to modify or cancel any sale at our discretion. Thank you for your understanding and happy shopping!Let's go back to the top.