LogoLogo TaglineLogo Tagline
Loading...

What is Included in Our Plans?

We work with hundreds of designers and architects who work in a variety of styles, and their plan packages may contain different details.
We strongly encourage you to contact us for the contents of any plan you may be interested in purchasing.
Below are examples of sheets that may be included in plan sets - please be aware that not every plan includes every one of these pages:
whats-included-foundation-plan
Foundation Plan
shows the foundation details.
whats-included-floor-plan
Floor Plan
shows the placement of interior walls and the dimensions for rooms, doors, windows, stairways, etc. of each level of the house.
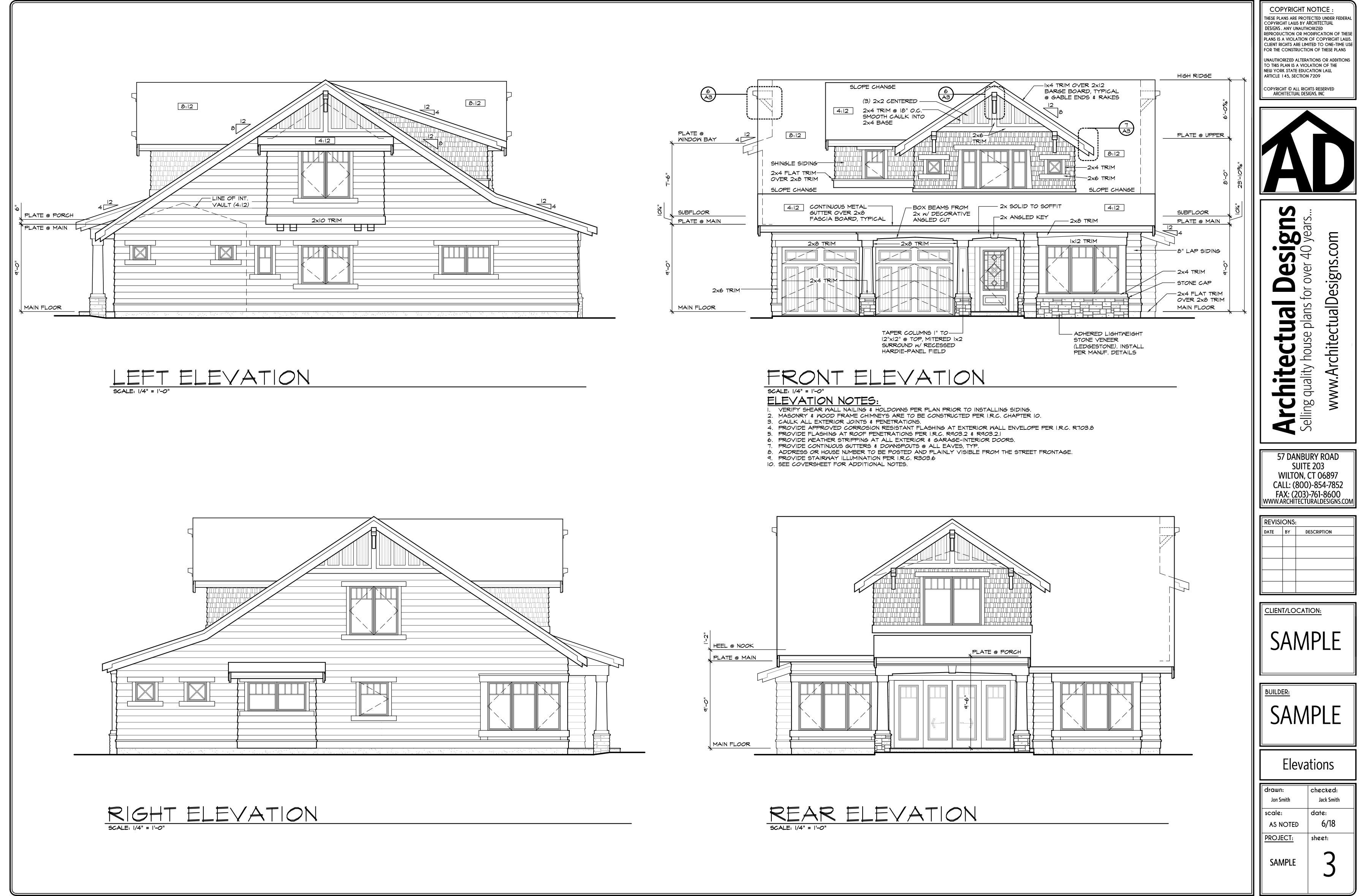
whats-included-exterior-elevation
Exterior Elevations
show the front, rear and sides of the house, including exterior materials, details and roof pitches.
whats-included-building-sections
Building Cross Section
shows details of the house as though it were cut in slices from the roof to the foundation. The cross sections detail the construction of the home, insulation, flooring and roofing.
whats-included-roof-plan
Roof Plan
provides a bird's eye view of the roof's valleys, ridges and dormers, if applicable
whats-included-electrical-plan
Electrical Plan (when available)
shows the suggested locations for fixtures and outlets. Please contact us to see if an electrical plan is included in the plan set
whats-included-typical-details
Notes & Details
provides information for structural specifications, excavating and grading, masonry and concrete work, carpentry and wood specifications, thermal and moisture protection and specifications about drywall, tile, flooring, glazing, caulking and sealants.
Building Code
Because of the wide range of requirements throughout states and municipalities, it is possible that the plans may not have all of the information required by your building department. If this is the case, we recommend hiring a local design professional or engineer who can assist bringing the plans up to your local building code.
Engineering
Some states require that a licensed architect or engineer review and stamp the plans. If this is the case where you will be building, a local professional will be able to assist you.

Important Extras: Sold separately

Readable Reverse Plans
The layout is reversed and all the writing is corrected so you can read the writing. With this option, all of your sets will appear the way you want to build the home. This option is available for an additional charge.
Mirror Reverse Plans
The lettering and dimensions will read backwards, so you will need to order at least one set non-reversed as a reference copy.
Itemized List of Materials (when available)
Includes the quantity, type and size of materials needed to build your home.