
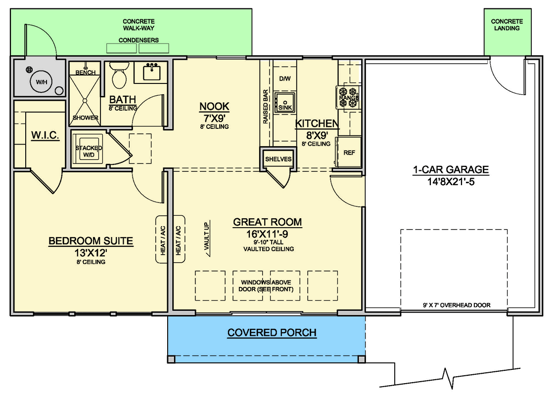
Total Heated Area
660 sq. ft.
1st Floor
660 sq. ft.
Porch, Front
66 sq. ft.
Porch, Rear
81 sq. ft.
Bedrooms
1
Full bathrooms
1
Standard Foundations
Slab
Exterior Walls
2x4
Optional Type(s)
2x6
Width
45' 0"
Depth
26' 0"
Max Ridge Height
14' 10"
Type
Attached
Area
330 sq. ft.
Count
1 Cars
Entry Location
Front
First Floor
8' 1"
Room
Ceiling Type
Height
Great Room
Vaulted
9' 10''
Primary Pitch
3 on 12
Framing Type
Stick And Truss
Total Heated Area
660 sq. ft.
1st Floor
660 sq. ft.
Porch, Front
66 sq. ft.
Porch, Rear
81 sq. ft.
Bedrooms
1
Full bathrooms
1
Standard Foundations
Slab
Exterior Walls
2x4
Optional Type(s)
2x6
Width
45' 0"
Depth
26' 0"
Max Ridge Height
14' 10"
Type
Attached
Area
330 sq. ft.
Count
1 Cars
Entry Location
Front
First Floor
8' 1"
Room
Ceiling Type
Height
Great Room
Vaulted
9' 10''
Primary Pitch
3 on 12
Framing Type
Stick And Truss