

Total Heated Area
1,537 sq. ft.
1st Floor
1,019 sq. ft.
2nd Floor
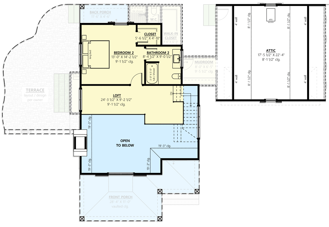
518 sq. ft.
Porch, Front
293 sq. ft.
Porch, Rear
53 sq. ft.
Attic
417 sq. ft.
Bedrooms
2
Full bathrooms
2
Half bathrooms
1
Standard Foundations
Crawl
Exterior Walls
2x4
Width
60' 8"
Depth
51' 6"
Max Ridge Height
27' 8"
Type
Attached
Area
655 sq. ft.
Count
2 Cars
Entry Location
Front
First Floor
9' 1"
Second Floor
9' 1"
Attic
8' 1''
Garage
9' 5''
Room
Ceiling Type
Height
Great Room
Slope
16' 9''
Primary Pitch
12 on 12
Secondary Pitch
4 on 12
Framing Type
Stick
Total Heated Area
1,537 sq. ft.
1st Floor
1,019 sq. ft.
2nd Floor
518 sq. ft.
Porch, Front
293 sq. ft.
Porch, Rear
53 sq. ft.
Attic
417 sq. ft.
Bedrooms
2
Full bathrooms
2
Half bathrooms
1
Standard Foundations
Crawl
Exterior Walls
2x4
Width
60' 8"
Depth
51' 6"
Max Ridge Height
27' 8"
Type
Attached
Area
655 sq. ft.
Count
2 Cars
Entry Location
Front
First Floor
9' 1"
Second Floor
9' 1"
Attic
8' 1''
Garage
9' 5''
Room
Ceiling Type
Height
Great Room
Slope
16' 9''
Primary Pitch
12 on 12
Secondary Pitch
4 on 12
Framing Type
Stick