Exclusive


Total Heated Area
1,716 sq. ft.
1st Floor
1,117 sq. ft.
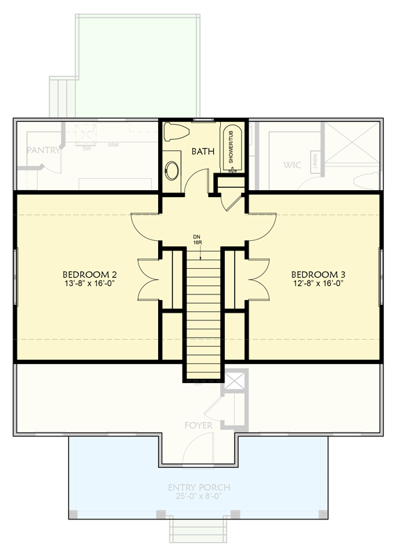
2nd Floor
599 sq. ft.
Bedrooms
3
Full bathrooms
2
Half bathrooms
1
Standard Foundations
Crawl
Exterior Walls
2x4
Optional Type(s)
2x6
Width
35' 8"
Depth
38' 8"
Max Ridge Height
24' 2"
First Floor
9'
Second Floor
8'
Primary Pitch
10 on 12
Secondary Pitch
12 on 12
Framing Type
Stick
Total Heated Area
1,716 sq. ft.
1st Floor
1,117 sq. ft.
2nd Floor
599 sq. ft.
Bedrooms
3
Full bathrooms
2
Half bathrooms
1
Standard Foundations
Crawl
Exterior Walls
2x4
Optional Type(s)
2x6
Width
35' 8"
Depth
38' 8"
Max Ridge Height
24' 2"
First Floor
9'
Second Floor
8'
Primary Pitch
10 on 12
Secondary Pitch
12 on 12
Framing Type
Stick