LogoLogo TaglineLogo Tagline
Loading...
Plan 350022GH

2 Bed Country Home Plan Under 1500 Square Feet with Upstairs Office

Heated S.F.
1,499
Beds
2
Baths
2
Stories
2
Cars
2

Floor Plan

Plan 350022GH

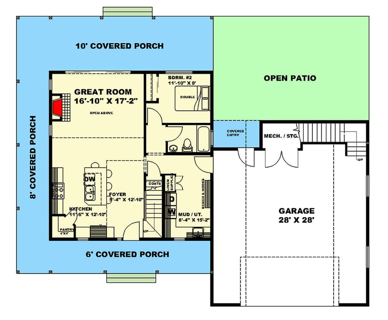
Main Level
Main Level
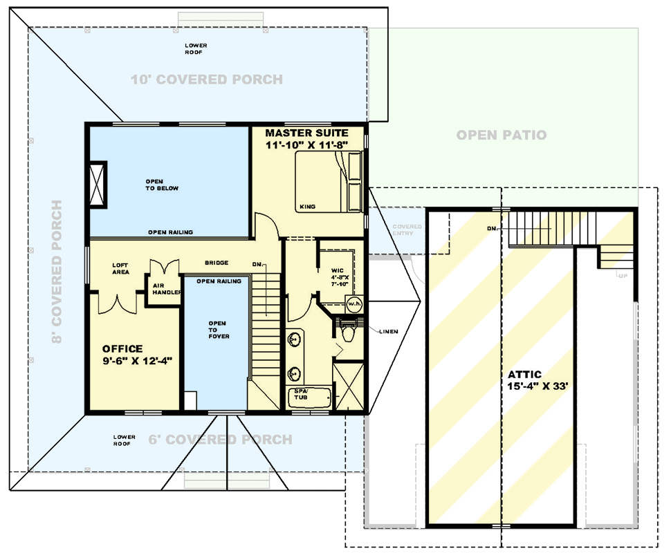
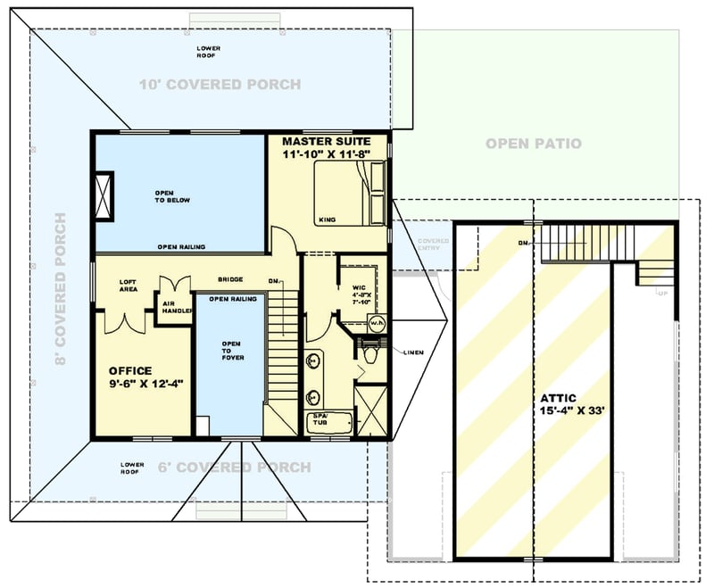
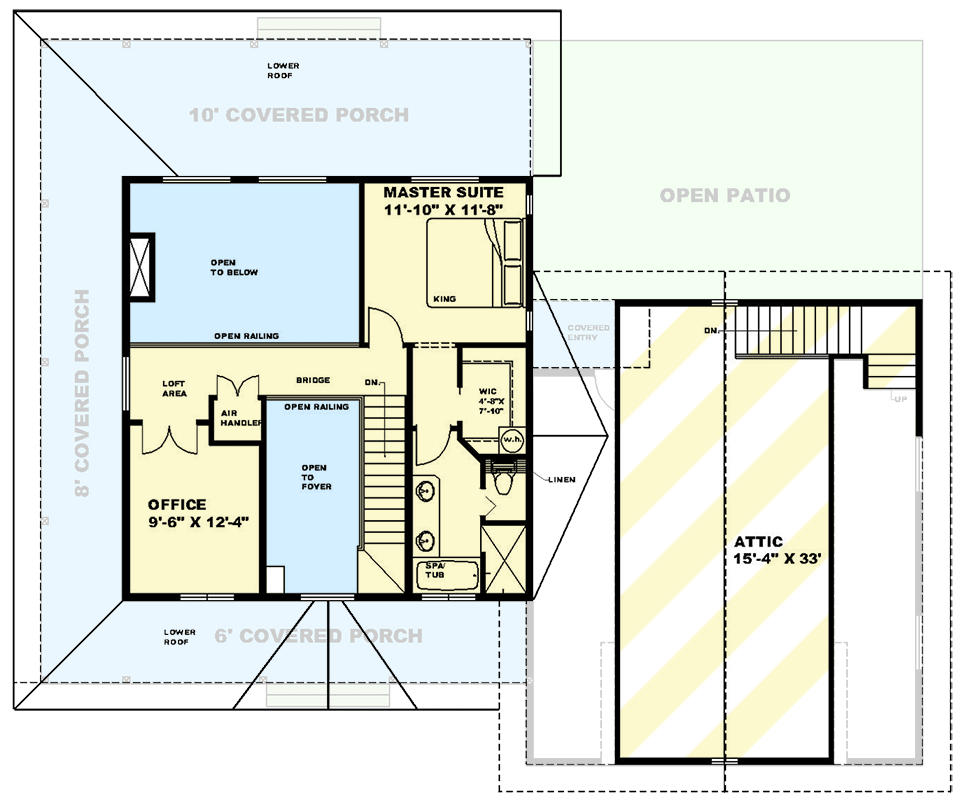
2nd Floor
2nd Floor

Plan 350022GH

M-F 9am-5pm EST |

1-203-761-8500

Main Level

Plan 350022GH: 2 Bed Country Home Plan Under 1500 Square Feet with Upstairs Office - Floor Plan - Main Level

2nd Floor

Plan 350022GH: 2 Bed Country Home Plan Under 1500 Square Feet with Upstairs Office - Floor Plan - 2nd Floor

Plan Details

  • This 2 bed, 2 bath country home plan has a board and batten exterior with a standing seam metal roof over the 6'-deep wraparound porch giving it a rustic feel. A brick trim around the 2-car garage adds to the appeal.
  • The foyer is open to above - as is the great room - and is open to the kitchen and with an island that comfortably seats 4.
  • A roomy mudroom with a bench  and hooks acts as a transition zone to the garage.
  • The master suite is on the second floor along with a small loft area that looks down on the great room and a home office.

What's Included

  • Exterior Elevations:  The exterior elevations provide exterior views of the house and call out the exterior finish materials, such as siding, stucco, brick, stone, etc. This page also shows roof pitches and materials, and decorative elements, such as columns and window shutters. Sometimes window and door sizes are also shown here.
  • Floor Plans:  The floor plan shows how each room is laid out on each floor of the house. In most cases, the floor plan will include wall sizes, room dimensions, notes about ceiling design, window and door locations and sizes, and other structural layout notes and details.
  • Foundation Plan: This page provides a detailed foundation drawing, including the thickness of the foundation walls, how the foundation is built, footing and wall placement, Rebar schedule, as well as other construction notes and details. This page may also include a floor framing plan.
  • Cross Sections: Cross sections are views from the top to the bottom of the house plan showing structural details related to the construction of the home. They will show the composition of the foundation, interior and exterior walls, roof, floor and stair details. They also show rooflines, ceiling heights, and the relationships between floors. Cross sections may be on a separate page or on various pages throughout the home plan.
  • Basic Electric: This page shows the locations of outlets, switches, and fixtures. It may be on a separate page, or located on the floor plan page.
  • Simple Plumbing: This page shows the locations of the bathtubs, showers, toilets, and sinks. This may be found on the floor plan, or it might be on a separate page.
  • Details: This page includes the structural details for the construction of the house.

What's Not Included

  • Architectural or Engineering Stamp - handled locally if required
  • Site Plan - handled locally when required
  • Mechanical Drawings (location of heating and air equipment and duct work) - your subcontractors handle this
  • Plumbing Drawings (drawings showing the actual plumbing pipe sizes and locations) - your subcontractors handle this
  • Energy calculations - handled locally when required

Starting at

Loading...
Price Match Guarantee
What's included?

FORMAT & LICENSE

Choose an option

$0

Not sure what to choose?

Pointer link icon

FOUNDATION

Choose an option

+$0

OPTIONS

Choose Additional Options

+$0

Loading...

Modify this Plan

Receive a free modification quote within 3 business days.

Loading...

Start with a Cost Report

Calculate the cost to build & furnish your home.

Loading...
Loading...

Square Footage Breakdown

Total Heated Area

1,499 sq. ft.

1st Floor

930 sq. ft.

2nd Floor

569 sq. ft.

Bonus

515 sq. ft.

Beds/Baths

Bedrooms

2

Full bathrooms

2

Foundation Type

Standard Foundations

Slab

Exterior Walls

Exterior Walls

2x6

Dimensions

Width

64' 6"

Depth

53' 0"

Max Ridge Height

29' 8"

Garage

Type

Attached

Area

933 sq. ft.

Count

2 Cars

Entry Location

Front

Ceiling Heights

First Floor

9' 1"

Second Floor

9' 1"

Roof Details

Primary Pitch

8 on 12

Secondary Pitch

6 on 12

Framing Type

Truss

Special Features

Laundry - Main Level

Square Footage Breakdown

Total Heated Area

1,499 sq. ft.

1st Floor

930 sq. ft.

2nd Floor

569 sq. ft.

Bonus

515 sq. ft.

Beds/Baths

Bedrooms

2

Full bathrooms

2

Foundation Type

Standard Foundations

Slab

Exterior Walls

Exterior Walls

2x6

Dimensions

Width

64' 6"

Depth

53' 0"

Max Ridge Height

29' 8"

Garage

Type

Attached

Area

933 sq. ft.

Count

2 Cars

Entry Location

Front

Ceiling Heights

First Floor

9' 1"

Second Floor

9' 1"

Roof Details

Primary Pitch

8 on 12

Secondary Pitch

6 on 12

Framing Type

Truss

* Please note that all sale prices and promotions featured on our website are subject to change without prior notice. While we strive to provide accurate and up-to-date information, occasional discrepancies may occur due to factors beyond our control. We encourage you to verify all details, including pricing and availability, before making any purchase. Exclusions or restrictions may apply to specific promotions. We reserve the right to modify or cancel any sale at our discretion. Thank you for your understanding and happy shopping!Let's go back to the top.