

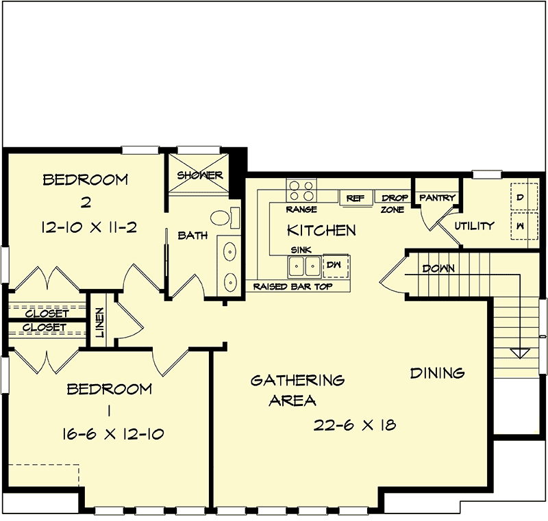
Total Heated Area
1,266 sq. ft.
1st Floor
98 sq. ft.
2nd Floor
1,168 sq. ft.
Bedrooms
2
Full bathrooms
1
Half bathrooms
1
Standard Foundations
Slab
Exterior Walls
2x6
Width
44' 6"
Depth
42' 0"
Max Ridge Height
28' 0"
Type
Detached
Area
1244 sq. ft.
Count
3 Cars
Entry Location
Front
First Floor
9'
Second Floor
9'
Primary Pitch
12 on 12
Secondary Pitch
6 on 12
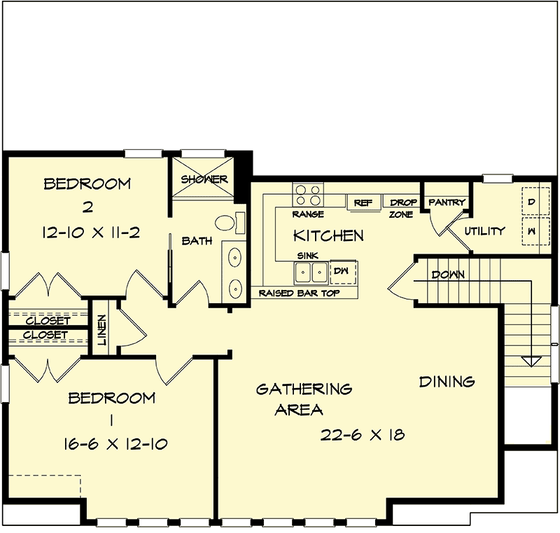
Total Heated Area
1,266 sq. ft.
1st Floor
98 sq. ft.
2nd Floor
1,168 sq. ft.
Bedrooms
2
Full bathrooms
1
Half bathrooms
1
Standard Foundations
Slab
Exterior Walls
2x6
Width
44' 6"
Depth
42' 0"
Max Ridge Height
28' 0"
Type
Detached
Area
1244 sq. ft.
Count
3 Cars
Entry Location
Front
First Floor
9'
Second Floor
9'
Primary Pitch
12 on 12
Secondary Pitch
6 on 12