

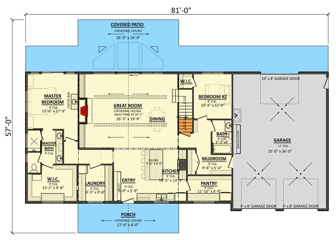
Total Heated Area
2,202 sq. ft.
1st Floor
1,932 sq. ft.
2nd Floor
270 sq. ft.
Basement Unfinished
1,932 sq. ft.
Porch, Front
425 sq. ft.
Porch, Rear
756 sq. ft.
Bedrooms
2
Full bathrooms
2
Standard Foundations
Basement
Exterior Walls
2x6
Width
81' 0"
Depth
57' 0"
Max Ridge Height
25' 6"
Type
Attached, Standard
Area
954 sq. ft.
Count
3 Cars
Entry Location
Front
First Floor
9'
Second Floor
8'
Primary Pitch
9 on 12
Secondary Pitch
3 on 12
Total Heated Area
2,202 sq. ft.
1st Floor
1,932 sq. ft.
2nd Floor
270 sq. ft.
Basement Unfinished
1,932 sq. ft.
Porch, Front
425 sq. ft.
Porch, Rear
756 sq. ft.
Bedrooms
2
Full bathrooms
2
Standard Foundations
Basement
Exterior Walls
2x6
Width
81' 0"
Depth
57' 0"
Max Ridge Height
25' 6"
Type
Attached, Standard
Area
954 sq. ft.
Count
3 Cars
Entry Location
Front
First Floor
9'
Second Floor
8'
Primary Pitch
9 on 12
Secondary Pitch
3 on 12