

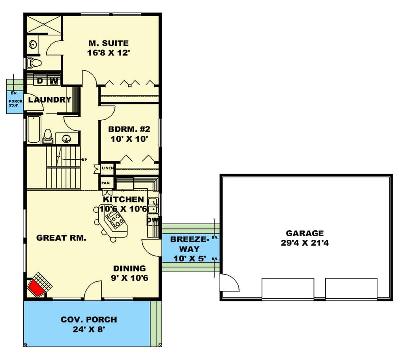
Total Heated Area
1,600 sq. ft.
1st Floor
1,200 sq. ft.
2nd Floor
400 sq. ft.
Bedrooms
2
Full bathrooms
2
Standard Foundations
Crawl
Exterior Walls
2x6
Width
64' 0"
Depth
50' 0"
Max Ridge Height
23' 4"
Type
Detached
Area
660 sq. ft.
Count
2 Cars
Entry Location
Front
First Floor
8'
Second Floor
5'
Room
Ceiling Type
Height
Great Room
Second Story
8' 0''
Loft
Vaulted
5' 0''
Primary Pitch
12 on 12
Secondary Pitch
6 on 12
Framing Type
Stick And Truss
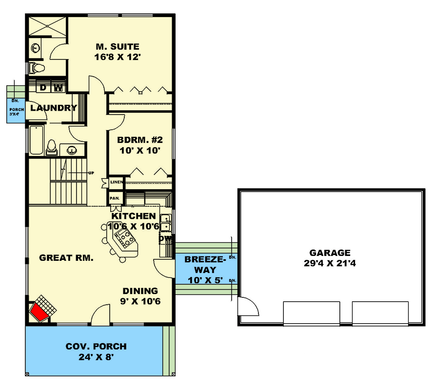
Total Heated Area
1,600 sq. ft.
1st Floor
1,200 sq. ft.
2nd Floor
400 sq. ft.
Bedrooms
2
Full bathrooms
2
Standard Foundations
Crawl
Exterior Walls
2x6
Width
64' 0"
Depth
50' 0"
Max Ridge Height
23' 4"
Type
Detached
Area
660 sq. ft.
Count
2 Cars
Entry Location
Front
First Floor
8'
Second Floor
5'
Room
Ceiling Type
Height
Great Room
Second Story
8' 0''
Loft
Vaulted
5' 0''
Primary Pitch
12 on 12
Secondary Pitch
6 on 12
Framing Type
Stick And Truss