
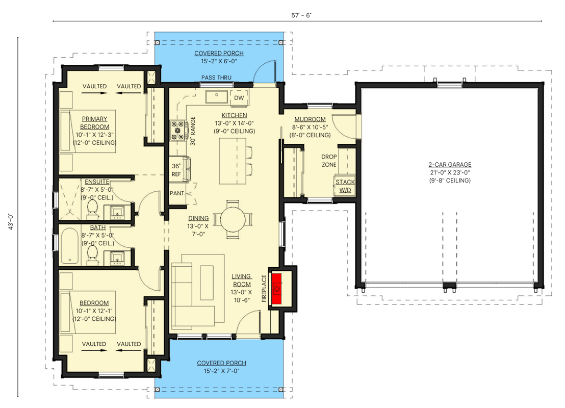
Total Heated Area
998 sq. ft.
1st Floor
998 sq. ft.
Porch, Front
100 sq. ft.
Porch, Rear
90 sq. ft.
Porch, Combined
190 sq. ft.
Bedrooms
2
Full bathrooms
2
Standard Foundations
Slab
Exterior Walls
2x6
Width
57' 6"
Depth
43' 0"
Max Ridge Height
18' 3"
Type
Attached
Area
525 sq. ft.
Count
2 Cars
Entry Location
Front
First Floor
9'
Primary Pitch
4 on 12
Secondary Pitch
6 on 12
Framing Type
Stick And Truss
Total Heated Area
998 sq. ft.
1st Floor
998 sq. ft.
Porch, Front
100 sq. ft.
Porch, Rear
90 sq. ft.
Porch, Combined
190 sq. ft.
Bedrooms
2
Full bathrooms
2
Standard Foundations
Slab
Exterior Walls
2x6
Width
57' 6"
Depth
43' 0"
Max Ridge Height
18' 3"
Type
Attached
Area
525 sq. ft.
Count
2 Cars
Entry Location
Front
First Floor
9'
Primary Pitch
4 on 12
Secondary Pitch
6 on 12
Framing Type
Stick And Truss