

Total Heated Area
575 sq. ft.
2nd Floor
575 sq. ft.
Bedrooms
1
Full bathrooms
1
Standard Foundations
Slab
Exterior Walls
2x6
Width
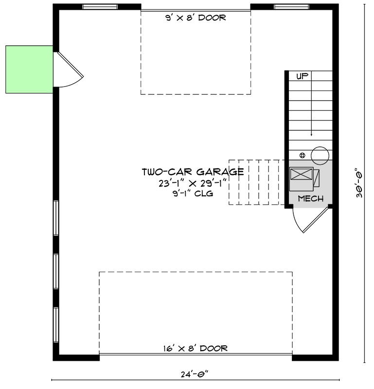
24' 0"
Depth
30' 0"
Max Ridge Height
23' 0"
Type
Detached
Area
720 sq. ft.
Count
2 Cars
Entry Location
Front, Rear
First Floor
9'
Second Floor
9' 5"
Room
Ceiling Type
Height
Bedroom 1
Vaulted
4' 2''
Primary Pitch
10 on 12
Secondary Pitch
16 on 12
Total Heated Area
575 sq. ft.
2nd Floor
575 sq. ft.
Bedrooms
1
Full bathrooms
1
Standard Foundations
Slab
Exterior Walls
2x6
Width
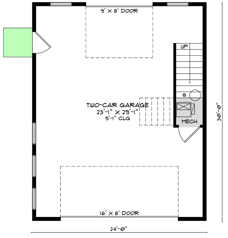
24' 0"
Depth
30' 0"
Max Ridge Height
23' 0"
Type
Detached
Area
720 sq. ft.
Count
2 Cars
Entry Location
Front, Rear
First Floor
9'
Second Floor
9' 5"
Room
Ceiling Type
Height
Bedroom 1
Vaulted
4' 2''
Primary Pitch
10 on 12
Secondary Pitch
16 on 12