


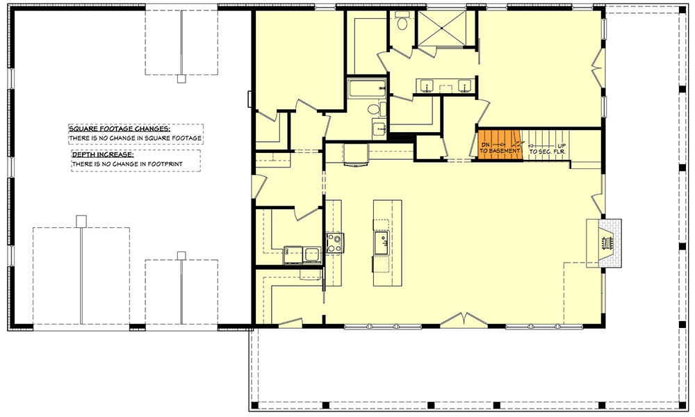
Total Heated Area
2,782 sq. ft.
1st Floor
1,760 sq. ft.
2nd Floor
1,022 sq. ft.
Porch, Combined
940 sq. ft.
Bedrooms
4
Full bathrooms
3
Standard Foundations
Slab
Exterior Walls
2x6
Width
84' 0"
Depth
50' 0"
Max Ridge Height
30' 0"
Type
Attached, RV Garage
Area
1200 sq. ft.
Count
4 Cars
Entry Location
Front
First Floor
10'
Second Floor
9'
Garage
14' 10''
Primary Pitch
8 on 12
Secondary Pitch
3 on 12
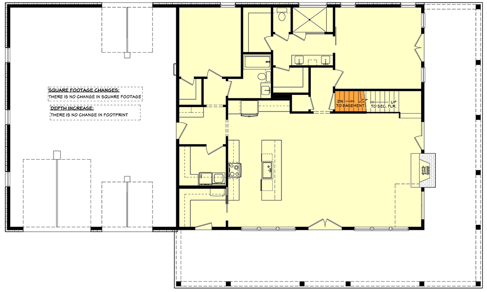
Total Heated Area
2,782 sq. ft.
1st Floor
1,760 sq. ft.
2nd Floor
1,022 sq. ft.
Porch, Combined
940 sq. ft.
Bedrooms
4
Full bathrooms
3
Standard Foundations
Slab
Exterior Walls
2x6
Width
84' 0"
Depth
50' 0"
Max Ridge Height
30' 0"
Type
Attached, RV Garage
Area
1200 sq. ft.
Count
4 Cars
Entry Location
Front
First Floor
10'
Second Floor
9'
Garage
14' 10''
Primary Pitch
8 on 12
Secondary Pitch
3 on 12