

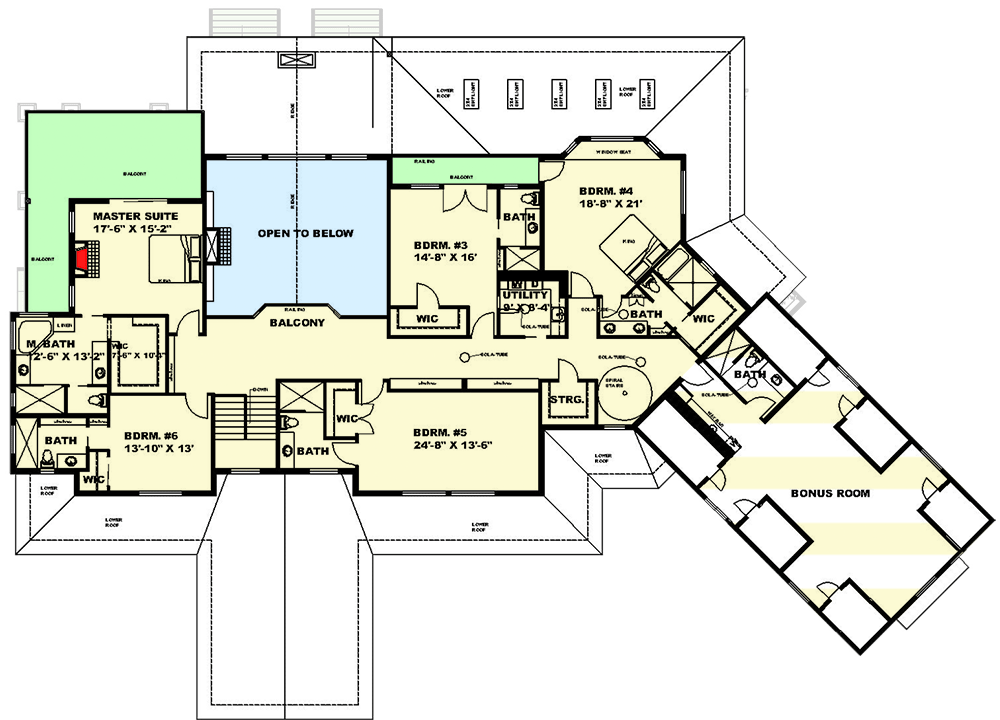
Total Heated Area
7,745 sq. ft.
1st Floor
3,724 sq. ft.
2nd Floor
3,220 sq. ft.
Bonus
801 sq. ft.
Bedrooms
6
Full bathrooms
8
Half bathrooms
1
Standard Foundations
Slab
Exterior Walls
2x8
Width
89' 0"
Depth
41' 11"
Max Ridge Height
37' 10"
Type
Attached
Area
1158 sq. ft.
Count
3 Cars
Entry Location
Front
Primary Pitch
10 on 12
Secondary Pitch
7 on 12
Framing Type
Stick And Truss
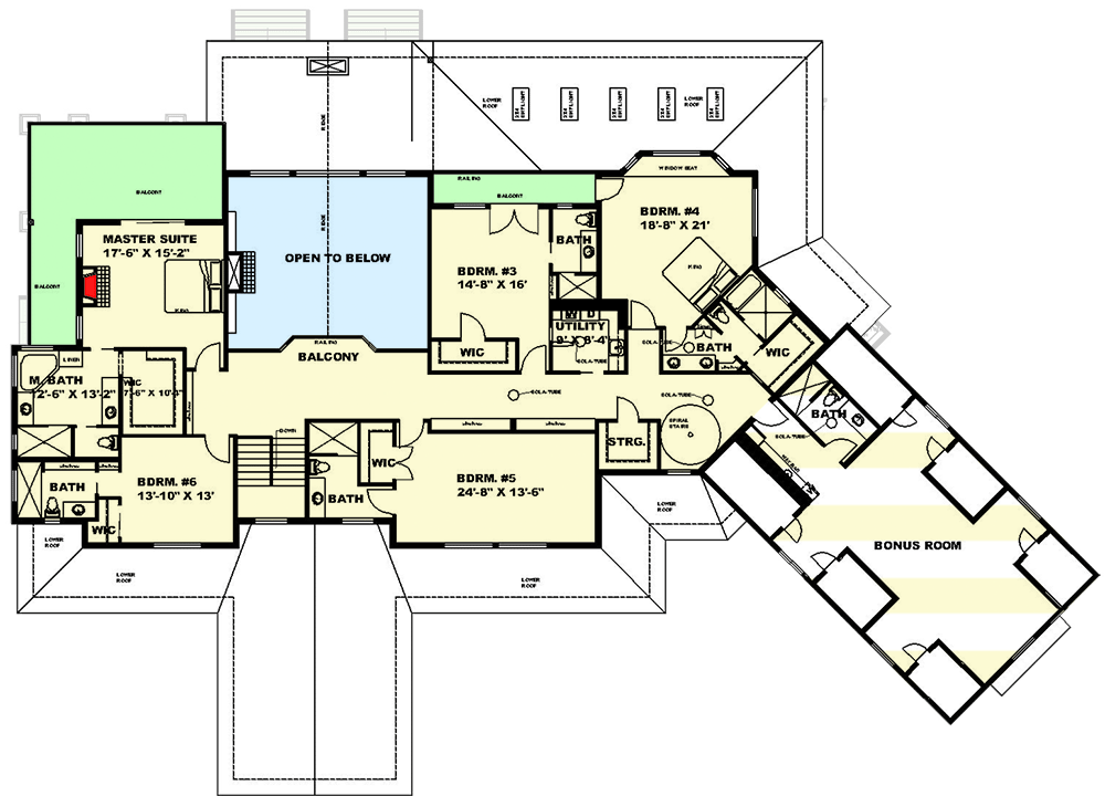
Total Heated Area
7,745 sq. ft.
1st Floor
3,724 sq. ft.
2nd Floor
3,220 sq. ft.
Bonus
801 sq. ft.
Bedrooms
6
Full bathrooms
8
Half bathrooms
1
Standard Foundations
Slab
Exterior Walls
2x8
Width
89' 0"
Depth
41' 11"
Max Ridge Height
37' 10"
Type
Attached
Area
1158 sq. ft.
Count
3 Cars
Entry Location
Front
Primary Pitch
10 on 12
Secondary Pitch
7 on 12
Framing Type
Stick And Truss