

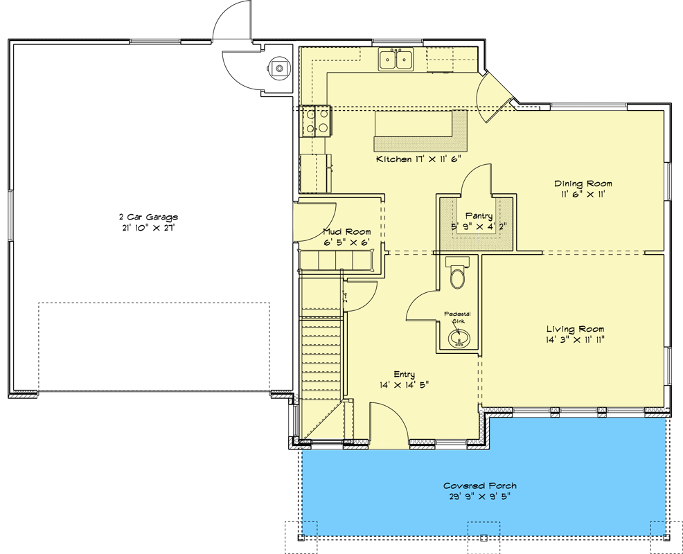
Total Heated Area
2,216 sq. ft.
1st Floor
842 sq. ft.
2nd Floor
1,374 sq. ft.
Bedrooms
4
Full bathrooms
2
Half bathrooms
1
Standard Foundations
Slab
Exterior Walls
2x6
Width
51' 6"
Depth
38' 10"
Max Ridge Height
25' 0"
Type
Attached
Area
590 sq. ft.
Count
2 Cars
Entry Location
Front
First Floor
8'
Second Floor
8'
Primary Pitch
7 on 12
Framing Type
Truss
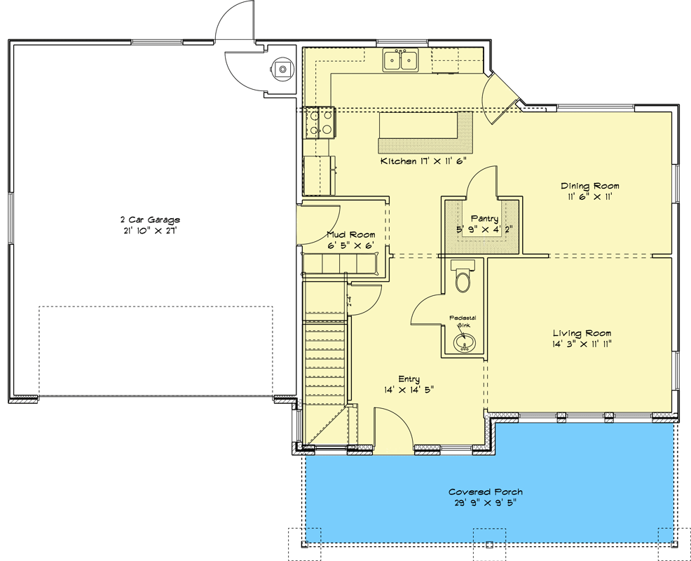
Total Heated Area
2,216 sq. ft.
1st Floor
842 sq. ft.
2nd Floor
1,374 sq. ft.
Bedrooms
4
Full bathrooms
2
Half bathrooms
1
Standard Foundations
Slab
Exterior Walls
2x6
Width
51' 6"
Depth
38' 10"
Max Ridge Height
25' 0"
Type
Attached
Area
590 sq. ft.
Count
2 Cars
Entry Location
Front
First Floor
8'
Second Floor
8'
Primary Pitch
7 on 12
Framing Type
Truss