

Total Heated Area
2,050 sq. ft.
1st Floor
2,050 sq. ft.
Bonus
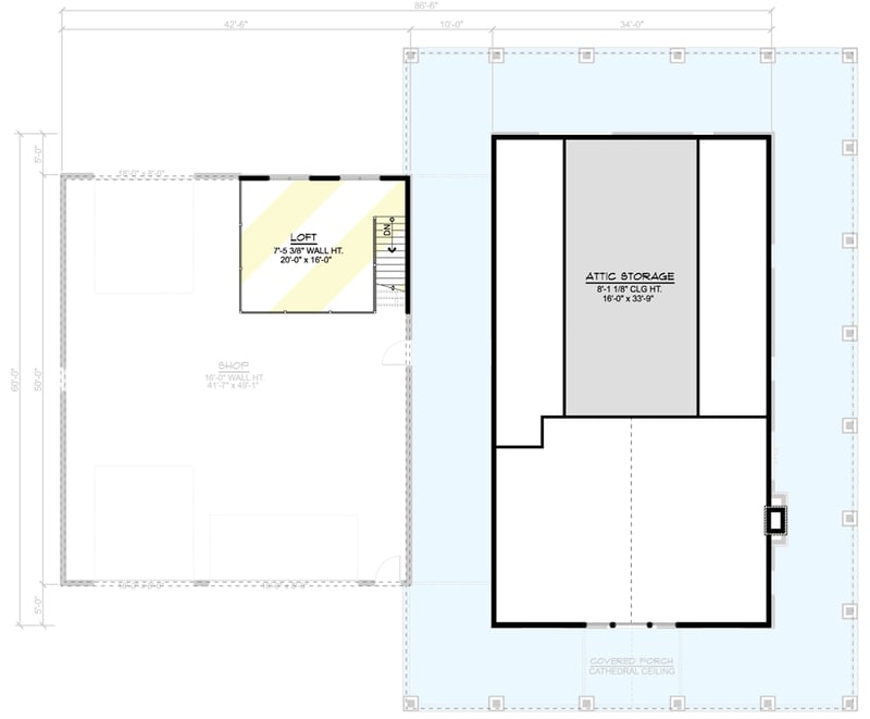
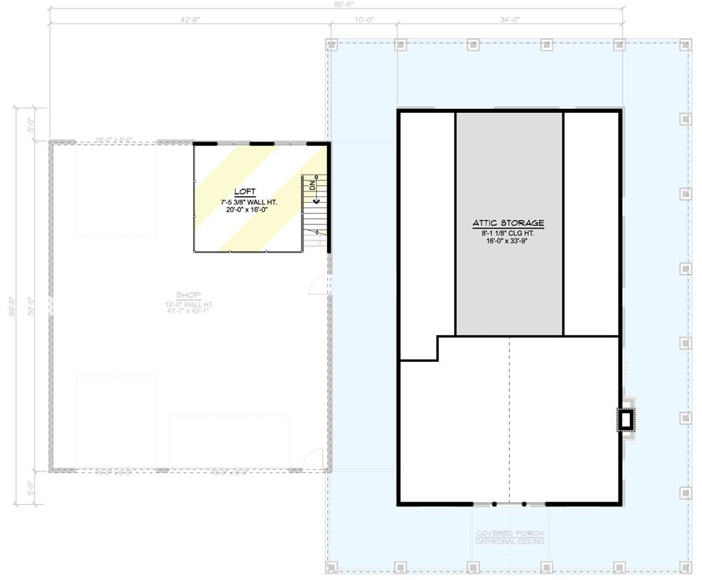
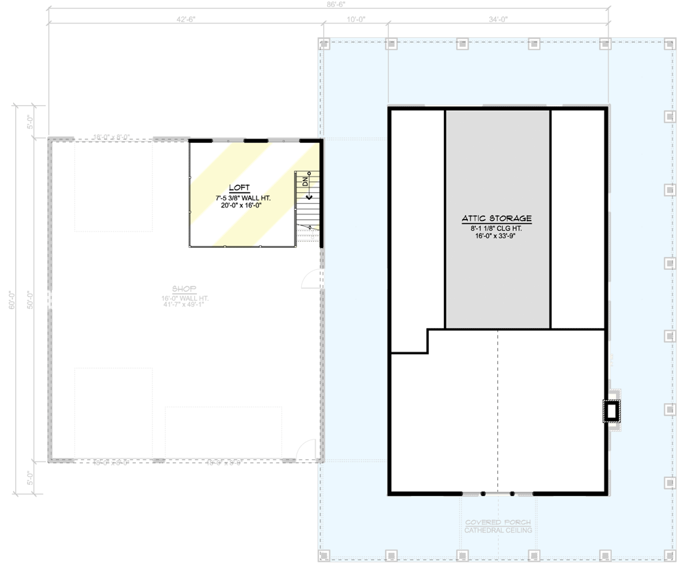
299 sq. ft.
Porch, Combined
2,282 sq. ft.
Bedrooms
3
Full bathrooms
2
Standard Foundations
Slab
Exterior Walls
2x6
Width
96' 6"
Depth
80' 0"
Max Ridge Height
25' 8"
Type
Attached, RV Garage
Area
2125 sq. ft.
Count
3 Cars
Entry Location
Front
First Floor
9'
Second Floor
8'
Primary Pitch
9 on 12
Secondary Pitch
4 on 12
Framing Type
Truss
Total Heated Area
2,050 sq. ft.
1st Floor
2,050 sq. ft.
Bonus
299 sq. ft.
Porch, Combined
2,282 sq. ft.
Bedrooms
3
Full bathrooms
2
Standard Foundations
Slab
Exterior Walls
2x6
Width
96' 6"
Depth
80' 0"
Max Ridge Height
25' 8"
Type
Attached, RV Garage
Area
2125 sq. ft.
Count
3 Cars
Entry Location
Front
First Floor
9'
Second Floor
8'
Primary Pitch
9 on 12
Secondary Pitch
4 on 12
Framing Type
Truss