



Total Heated Area
2,325 sq. ft.
1st Floor
2,325 sq. ft.
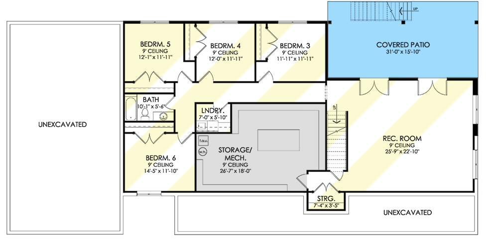
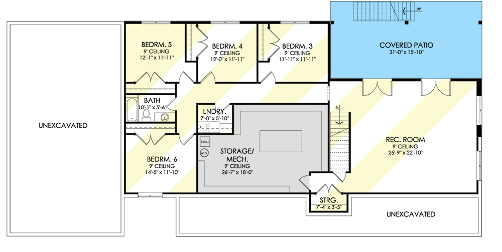
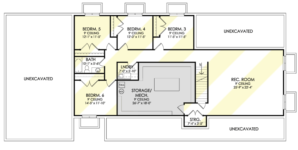
Optional Lower Level
1,751 sq. ft.
Porch, Front
482 sq. ft.
Covered Patio
376 sq. ft.
Bedrooms
2, 3, 4, 5, or 6
Full bathrooms
2 or 3
Standard Foundations
Crawl, Slab
Exterior Walls
2x6
Width
97' 1"
Depth
44' 0"
Type
Attached
Area
989 sq. ft.
Count
4 Cars
Entry Location
Side
Lower Level
9'
First Floor
10'
Total Heated Area
2,325 sq. ft.
1st Floor
2,325 sq. ft.
Optional Lower Level
1,751 sq. ft.
Porch, Front
482 sq. ft.
Covered Patio
376 sq. ft.
Bedrooms
2, 3, 4, 5, or 6
Full bathrooms
2 or 3
Standard Foundations
Crawl, Slab
Exterior Walls
2x6
Width
97' 1"
Depth
44' 0"
Type
Attached
Area
989 sq. ft.
Count
4 Cars
Entry Location
Side
Lower Level
9'
First Floor
10'