LogoLogo TaglineLogo Tagline
Loading...
Plan 135187GRA

2400 Square Foot Rustic 3-Bedroom Farmhouse Plan with Barn-Style Garage

Heated S.F.
2,400
Beds
3
Baths
2.5
Stories
2
Cars
3

Floor Plan

Plan 135187GRA

Main Level
Main Level
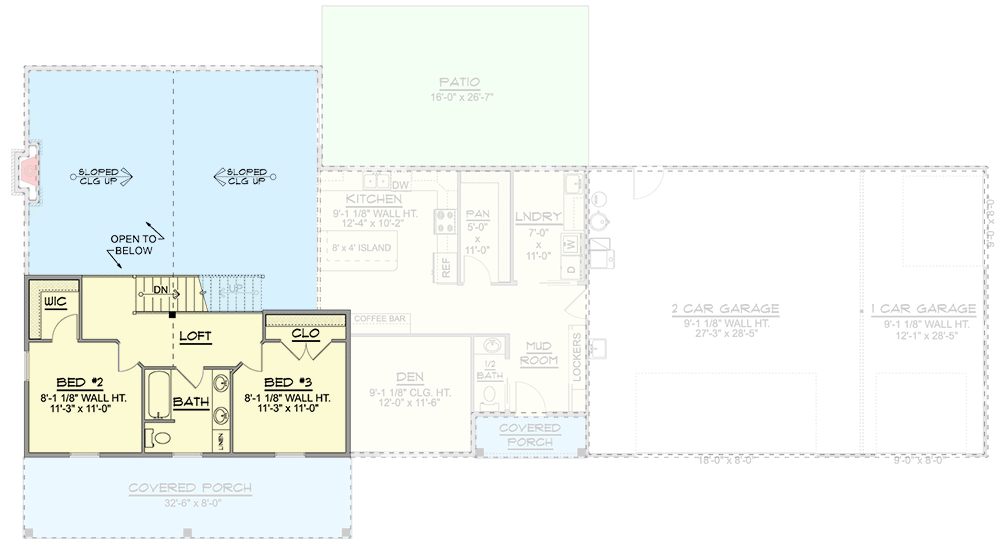
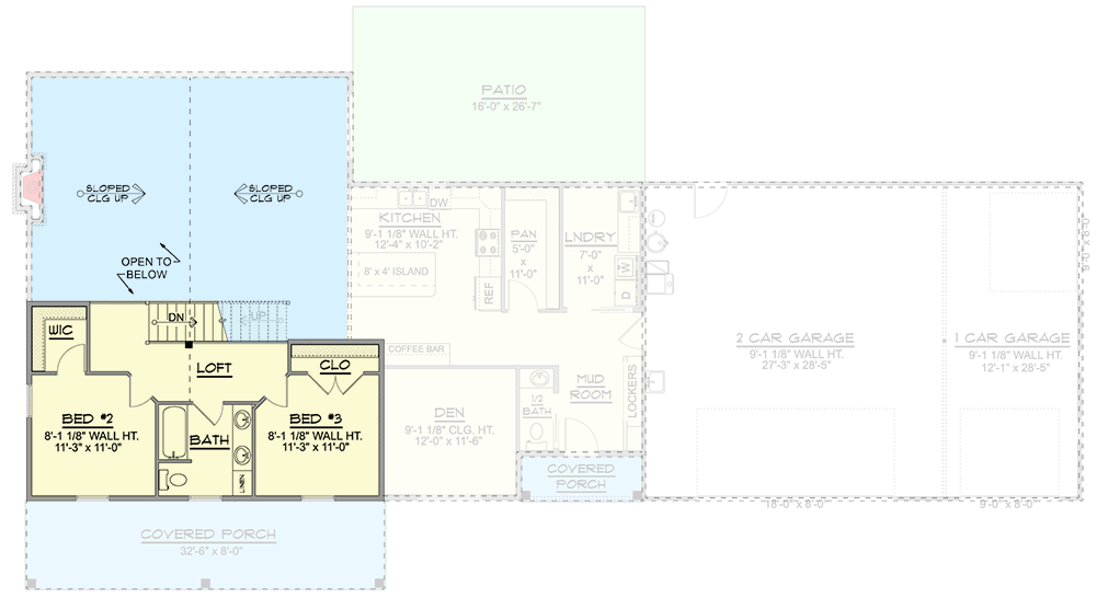
2nd Floor
2nd Floor

Plan 135187GRA

M-F 9am-5pm EST |

1-203-761-8500

Main Level

Plan 135187GRA: 2400 Square Foot Rustic 3-Bedroom Farmhouse Plan with Barn-Style Garage  - Floor Plan - Main Level - Barndominium, Country, Farmhouse, Modern Farmhouse, New American, Rustic, Transitional

2nd Floor

Plan 135187GRA: 2400 Square Foot Rustic 3-Bedroom Farmhouse Plan with Barn-Style Garage  - Floor Plan - 2nd Floor - Barndominium, Country, Farmhouse, Modern Farmhouse, New American, Rustic, Transitional

Plan Details

  • This Rustic 3-Bedroom Farmhouse plan provides a thoughtful two-level design with a barn-style garage adding to the overall character and curb appeal.
  • An 8'-deep front porch welcomes you inside to find a quiet den to the right of the foyer, while the combined great room and dining area are a few steps further and provide access to the back patio.
  • The spacious kitchen features a central island with a wraparound eating bar, coffee bar, and a walk-in pantry. The 3-car garage is located nearby with large services areas just inside.
  • The master bedroom is conveniently located on the main level and delivers two closets and a custom tile shower in the ensuite.
  • Bedrooms 2 and 3 can be found upstairs and share the 4-fixture bath that separates them.

What's Included

  • Elevations
  • Fully Dimensioned Floor Plans
  • Roof Plan & Sections
  • Foundation plan
  • General Notes
  • Suggested Electrical Layout
View Sample Plan

What's Not Included

  • Architectural or Engineering Stamp - handled locally if required
  • Site Plan - handled locally when required
  • Mechanical Drawings (location of heating and air equipment and duct work) - your subcontractors handle this
  • Plumbing Drawings (drawings showing the actual plumbing pipe sizes and locations) - your subcontractors handle this
  • Energy calculations - handled locally when required

Starting at

Loading...
Price Match Guarantee
What's included?

FORMAT & LICENSE

Choose an option

$0

Not sure what to choose?

Pointer link icon

FOUNDATION

Choose an option

+$0

OPTIONS

Choose Additional Options

+$0

Loading...

Modify this Plan

Receive a free modification quote within 3 business days.

Loading...

Start with a Cost Report

Calculate the cost to build & furnish your home.

Loading...
Loading...

Square Footage Breakdown

Total Heated Area

2,400 sq. ft.

1st Floor

1,884 sq. ft.

2nd Floor

516 sq. ft.

Porch, Front

291 sq. ft.

Beds/Baths

Bedrooms

3

Full bathrooms

2

Half bathrooms

1

Foundation Type

Standard Foundations

Slab

Exterior Walls

Exterior Walls

2x6

Dimensions

Width

96' 0"

Depth

47' 0"

Max Ridge Height

26' 9"

Garage

Type

Attached

Area

1152 sq. ft.

Count

3 Cars

Entry Location

Front

Ceiling Heights

First Floor

9'

Second Floor

8'

Roof Details

Primary Pitch

10 on 12

Secondary Pitch

12 on 12

Framing Type

Truss

Architectural Style

Barndominium

Plan Collections

Square Footage Breakdown

Total Heated Area

2,400 sq. ft.

1st Floor

1,884 sq. ft.

2nd Floor

516 sq. ft.

Porch, Front

291 sq. ft.

Beds/Baths

Bedrooms

3

Full bathrooms

2

Half bathrooms

1

Foundation Type

Standard Foundations

Slab

Exterior Walls

Exterior Walls

2x6

Dimensions

Width

96' 0"

Depth

47' 0"

Max Ridge Height

26' 9"

Garage

Type

Attached

Area

1152 sq. ft.

Count

3 Cars

Entry Location

Front

Ceiling Heights

First Floor

9'

Second Floor

8'

Roof Details

Primary Pitch

10 on 12

Secondary Pitch

12 on 12

Framing Type

Truss

Plan Collections

* Please note that all sale prices and promotions featured on our website are subject to change without prior notice. While we strive to provide accurate and up-to-date information, occasional discrepancies may occur due to factors beyond our control. We encourage you to verify all details, including pricing and availability, before making any purchase. Exclusions or restrictions may apply to specific promotions. We reserve the right to modify or cancel any sale at our discretion. Thank you for your understanding and happy shopping!Let's go back to the top.