


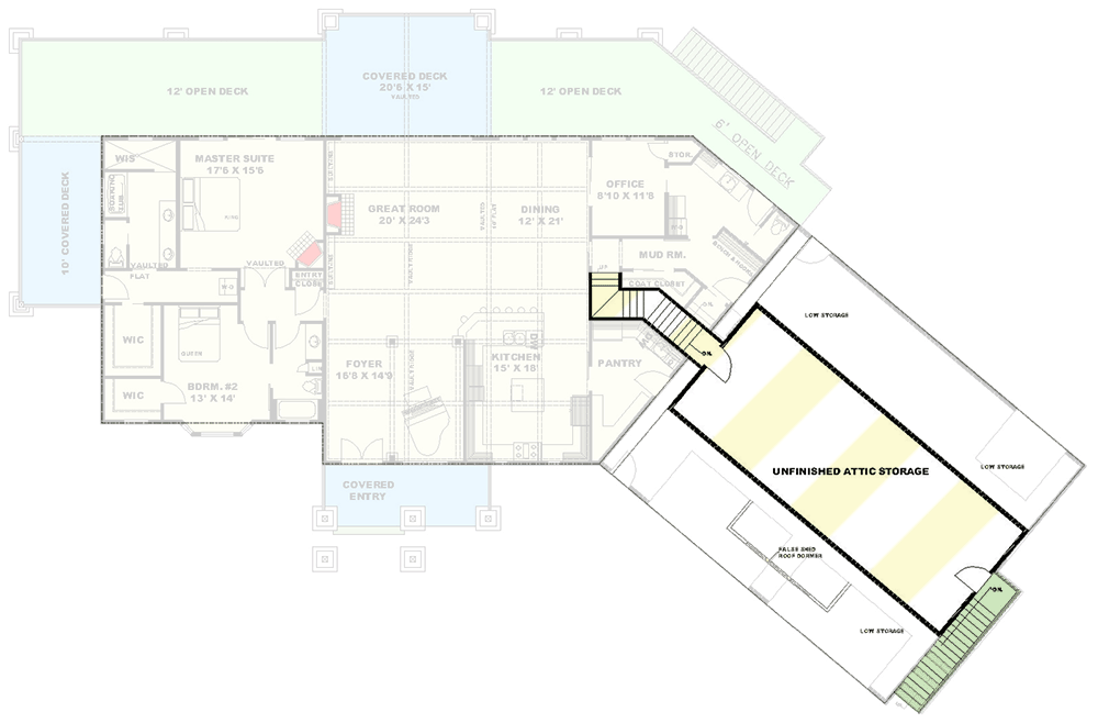
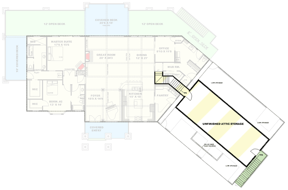
Total Heated Area
2,856 sq. ft.
1st Floor
2,856 sq. ft.
Optional Lower Level
2,848 sq. ft.
Bonus
740 sq. ft.
Bedrooms
2
Full bathrooms
2
Half bathrooms
1
Standard Foundations
Walkout
Exterior Walls
2x6
Width
130' 1"
Depth
85' 4"
Max Ridge Height
34' 3"
Type
Attached
Area
1728 sq. ft.
Count
4 Cars
Entry Location
Front
Lower Level
10'
First Floor
10' 1"
Primary Pitch
7 on 12
Secondary Pitch
10 on 12
Framing Type
Stick And Truss
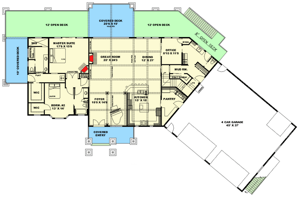
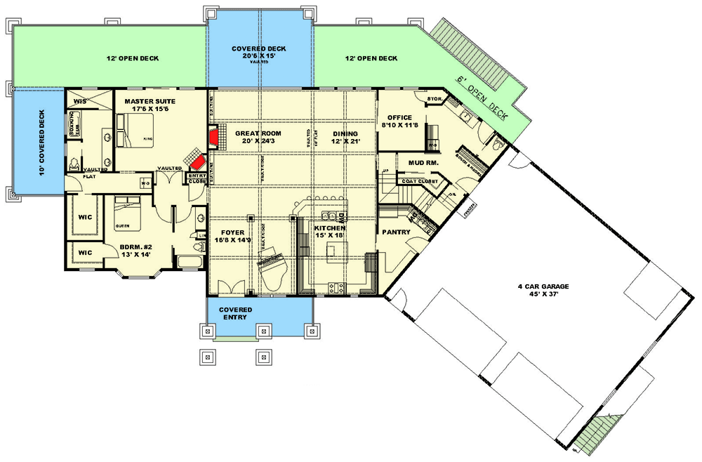
Total Heated Area
2,856 sq. ft.
1st Floor
2,856 sq. ft.
Optional Lower Level
2,848 sq. ft.
Bonus
740 sq. ft.
Bedrooms
2
Full bathrooms
2
Half bathrooms
1
Standard Foundations
Walkout
Exterior Walls
2x6
Width
130' 1"
Depth
85' 4"
Max Ridge Height
34' 3"
Type
Attached
Area
1728 sq. ft.
Count
4 Cars
Entry Location
Front
Lower Level
10'
First Floor
10' 1"
Primary Pitch
7 on 12
Secondary Pitch
10 on 12
Framing Type
Stick And Truss