

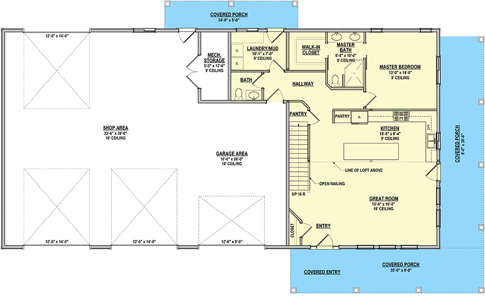
Total Heated Area
2,084 sq. ft.
1st Floor
1,263 sq. ft.
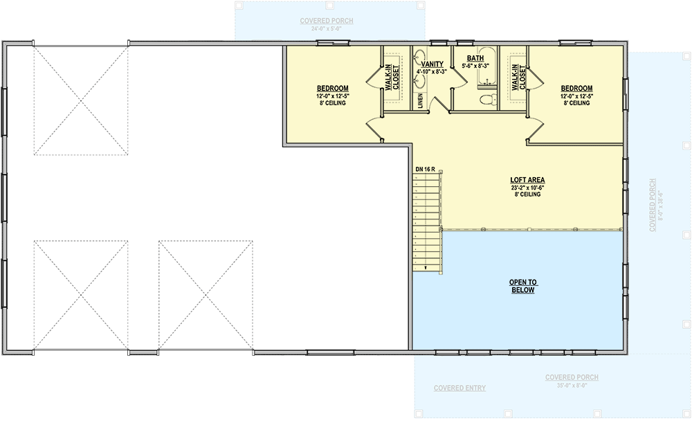
2nd Floor
821 sq. ft.
Loft
244 sq. ft.
Porch, Front
280 sq. ft.
Porch, Rear
120 sq. ft.
Porch, Combined
708 sq. ft.
Bedrooms
3
Full bathrooms
2
Half bathrooms
1
Standard Foundations
Slab
Exterior Walls
2x6
Width
80' 0"
Depth
40' 0"
Max Ridge Height
25' 0"
Type
Attached, RV Garage
Area
1937 sq. ft.
Count
3 Cars
Entry Location
Front, Rear
First Floor
9'
Second Floor
8'
Primary Pitch
4 on 12
Secondary Pitch
4 on 12
Framing Type
Truss
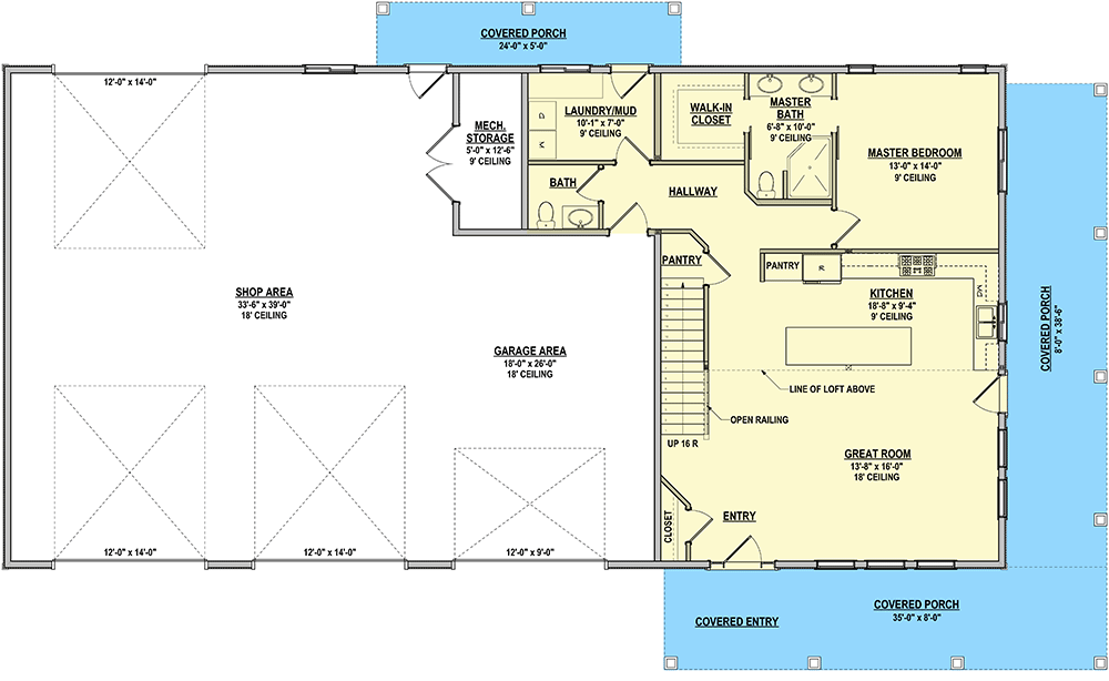
Total Heated Area
2,084 sq. ft.
1st Floor
1,263 sq. ft.
2nd Floor
821 sq. ft.
Loft
244 sq. ft.
Porch, Front
280 sq. ft.
Porch, Rear
120 sq. ft.
Porch, Combined
708 sq. ft.
Bedrooms
3
Full bathrooms
2
Half bathrooms
1
Standard Foundations
Slab
Exterior Walls
2x6
Width
80' 0"
Depth
40' 0"
Max Ridge Height
25' 0"
Type
Attached, RV Garage
Area
1937 sq. ft.
Count
3 Cars
Entry Location
Front, Rear
First Floor
9'
Second Floor
8'
Primary Pitch
4 on 12
Secondary Pitch
4 on 12
Framing Type
Truss