
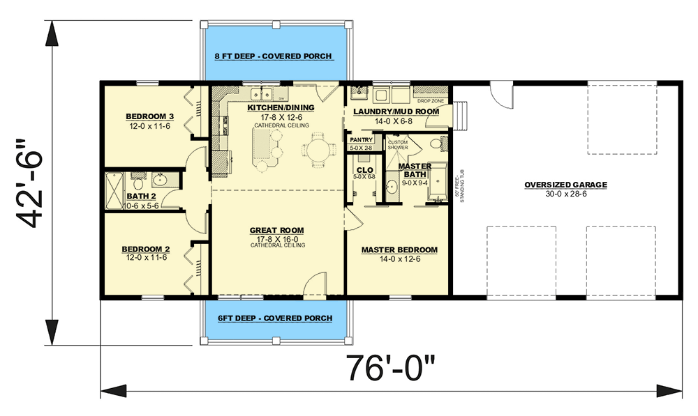
Total Heated Area
1,311 sq. ft.
1st Floor
1,311 sq. ft.
Porch, Front
120 sq. ft.
Porch, Rear
160 sq. ft.
Bedrooms
3
Full bathrooms
2
Standard Foundations
Stem Wall
Exterior Walls
2x6
Width
76' 0"
Depth
42' 6"
Max Ridge Height
20' 5"
Type
Attached
Area
855 sq. ft.
Count
2 Cars
Entry Location
Front
First Floor
10'
Primary Pitch
8 on 12
Framing Type
Truss
Total Heated Area
1,311 sq. ft.
1st Floor
1,311 sq. ft.
Porch, Front
120 sq. ft.
Porch, Rear
160 sq. ft.
Bedrooms
3
Full bathrooms
2
Standard Foundations
Stem Wall
Exterior Walls
2x6
Width
76' 0"
Depth
42' 6"
Max Ridge Height
20' 5"
Type
Attached
Area
855 sq. ft.
Count
2 Cars
Entry Location
Front
First Floor
10'
Primary Pitch
8 on 12
Framing Type
Truss