

Total Heated Area
2,227 sq. ft.
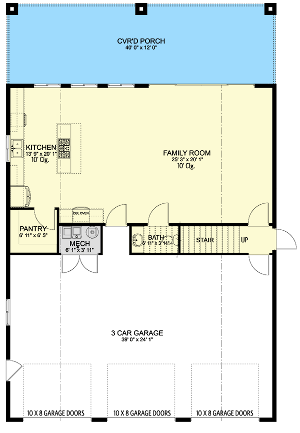
1st Floor
1,027 sq. ft.
2nd Floor
1,200 sq. ft.
Porch, Rear
480 sq. ft.
Bedrooms
3
Full bathrooms
2
Half bathrooms
1
Standard Foundations
Stem Wall
Exterior Walls
2x6
Width
40' 0"
Depth
52' 0"
Max Ridge Height
25' 5"
Type
Attached
Area
996 sq. ft.
Count
3 Cars
Entry Location
Front
First Floor
10'
Second Floor
8'
Primary Pitch
6 on 12
Secondary Pitch
3 on 12
Framing Type
Truss
Total Heated Area
2,227 sq. ft.
1st Floor
1,027 sq. ft.
2nd Floor
1,200 sq. ft.
Porch, Rear
480 sq. ft.
Bedrooms
3
Full bathrooms
2
Half bathrooms
1
Standard Foundations
Stem Wall
Exterior Walls
2x6
Width
40' 0"
Depth
52' 0"
Max Ridge Height
25' 5"
Type
Attached
Area
996 sq. ft.
Count
3 Cars
Entry Location
Front
First Floor
10'
Second Floor
8'
Primary Pitch
6 on 12
Secondary Pitch
3 on 12
Framing Type
Truss