LogoLogo TaglineLogo Tagline
Loading...
Plan 135246GRA

3 Bed Barndominium-Style House Plan with 1600 Sq Ft Garage - 2456 Sq Ft

Heated S.F.
2,456
Beds
3
Baths
2.5
Stories
1
Cars
4

Floor Plan

Plan 135246GRA

Main Level
Main Level

Plan 135246GRA

M-F 9am-5pm EST |

1-203-761-8500

Main Level

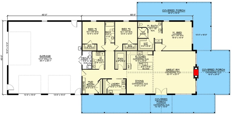
Plan 135246GRA: 3 Bed Barndominium-Style House Plan with 1600 Sq Ft Garage - 2456 Sq Ft - Floor Plan - Main Level - Barndominium, Country, Modern Farmhouse, Ranch

Plan Details

  • This barndominium-style house plan has 1,600 square feet of garage space with two 12' by 10' overhead doors in front and a larger 18' by 12' overhead door on the side giving you lots of room for your vehicles. Inside, the home ha 3 beds, 2.5 baths and 2,456 square feet of heated living space.
  • Porches are on three sides of the home, including the side covered porch with a cathedral ceiling and fireplace. Combined, ther is a total of 1,673 square feet of covered porch space to enjoy.
  • The heart of the home is the great room with cathedral ceiling which is open to the dining room and kitchen, also with cathedral ceilings.
  • All three bedrooms line the back of the home. Laundry is located by the mud room and is set behind a pocket door.
  • The exterior finish is spec'd for corrugated metal siding.

What's Included

  • Elevations
  • Fully Dimensioned Floor Plans
  • Roof Plan & Sections
  • Foundation plan
  • General Notes
  • Suggested Electrical Layout
View Sample Plan

What's Not Included

  • Architectural or Engineering Stamp - handled locally if required
  • Site Plan - handled locally when required
  • Mechanical Drawings (location of heating and air equipment and duct work) - your subcontractors handle this
  • Plumbing Drawings (drawings showing the actual plumbing pipe sizes and locations) - your subcontractors handle this
  • Energy calculations - handled locally when required

Starting at

Loading...
Price Match Guarantee
What's included?

FORMAT & LICENSE

Choose an option

$0

Not sure what to choose?

Pointer link icon

FOUNDATION

Choose an option

+$0

OPTIONS

Choose Additional Options

+$0

Loading...

Modify this Plan

Receive a free modification quote within 3 business days.

Loading...

Start with a Cost Report

Calculate the cost to build & furnish your home.

Loading...
Loading...

Square Footage Breakdown

Total Heated Area

2,456 sq. ft.

1st Floor

2,456 sq. ft.

Porch, Combined

1,673 sq. ft.

Beds/Baths

Bedrooms

3

Full bathrooms

2

Half bathrooms

1

Foundation Type

Standard Foundations

Slab

Exterior Walls

Exterior Walls

2x6

Dimensions

Width

120' 0"

Depth

60' 0"

Max Ridge Height

24' 7"

Garage

Type

Attached

Area

1600 sq. ft.

Count

4 Cars

Entry Location

Front, Side

Ceiling Heights

First Floor

10'

Roof Details

Primary Pitch

6 on 12

Architectural Style

Barndominium

Square Footage Breakdown

Total Heated Area

2,456 sq. ft.

1st Floor

2,456 sq. ft.

Porch, Combined

1,673 sq. ft.

Beds/Baths

Bedrooms

3

Full bathrooms

2

Half bathrooms

1

Foundation Type

Standard Foundations

Slab

Exterior Walls

Exterior Walls

2x6

Dimensions

Width

120' 0"

Depth

60' 0"

Max Ridge Height

24' 7"

Garage

Type

Attached

Area

1600 sq. ft.

Count

4 Cars

Entry Location

Front, Side

Ceiling Heights

First Floor

10'

Roof Details

Primary Pitch

6 on 12

* Please note that all sale prices and promotions featured on our website are subject to change without prior notice. While we strive to provide accurate and up-to-date information, occasional discrepancies may occur due to factors beyond our control. We encourage you to verify all details, including pricing and availability, before making any purchase. Exclusions or restrictions may apply to specific promotions. We reserve the right to modify or cancel any sale at our discretion. Thank you for your understanding and happy shopping!Let's go back to the top.