

Total Heated Area
1,578 sq. ft.
1st Floor
146 sq. ft.
2nd Floor
1,432 sq. ft.
Porch, Combined
1,250 sq. ft.
Deck
386 sq. ft.
Bedrooms
3
Full bathrooms
2
Half bathrooms
1
Standard Foundations
Slab
Exterior Walls
2x4
Optional Type(s)
2x6
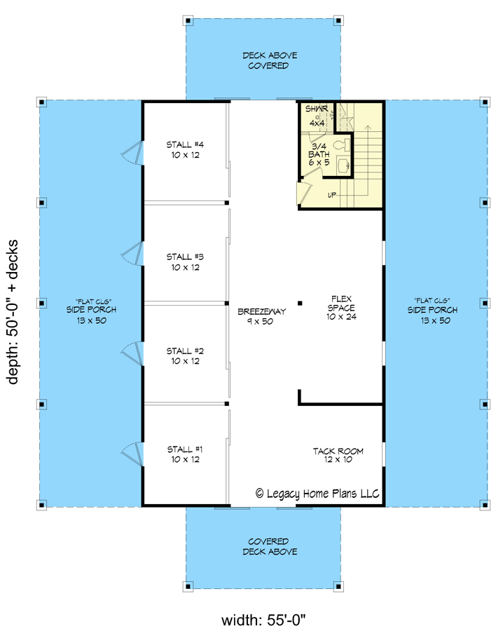
Width
55' 0"
Depth
50' 0"
Max Ridge Height
27' 11"
First Floor
10'
Second Floor
16'
Primary Pitch
10 on 12
Secondary Pitch
4 on 12
Framing Type
Stick
Total Heated Area
1,578 sq. ft.
1st Floor
146 sq. ft.
2nd Floor
1,432 sq. ft.
Porch, Combined
1,250 sq. ft.
Deck
386 sq. ft.
Bedrooms
3
Full bathrooms
2
Half bathrooms
1
Standard Foundations
Slab
Exterior Walls
2x4
Optional Type(s)
2x6
Width
55' 0"
Depth
50' 0"
Max Ridge Height
27' 11"
First Floor
10'
Second Floor
16'
Primary Pitch
10 on 12
Secondary Pitch
4 on 12
Framing Type
Stick