Exclusive

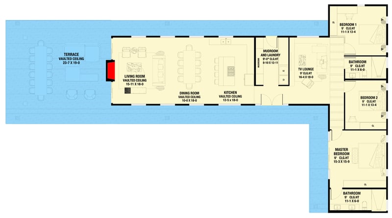
Total Heated Area
2,050 sq. ft.
1st Floor
2,050 sq. ft.
Deck & Porch
1,450 sq. ft.
Bedrooms
3
Full bathrooms
2
Standard Foundations
Crawl
Exterior Walls
2x6
Width
103' 10"
Depth
56' 10"
Max Ridge Height
22' 0"
Lower Level
9'
Room
Ceiling Type
Height
Living Room
Vaulted
14' 7''
Dining Room
Vaulted
14' 7''
Kitchen
Vaulted
14' 7''
Primary Pitch
6 on 12
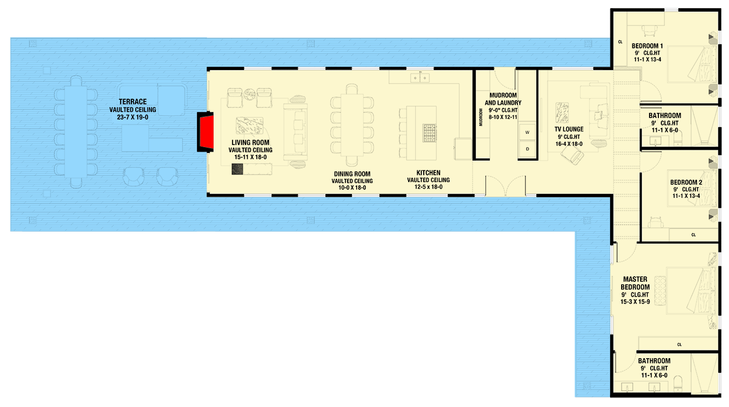
Total Heated Area
2,050 sq. ft.
1st Floor
2,050 sq. ft.
Deck & Porch
1,450 sq. ft.
Bedrooms
3
Full bathrooms
2
Standard Foundations
Crawl
Exterior Walls
2x6
Width
103' 10"
Depth
56' 10"
Max Ridge Height
22' 0"
Lower Level
9'
Room
Ceiling Type
Height
Living Room
Vaulted
14' 7''
Dining Room
Vaulted
14' 7''
Kitchen
Vaulted
14' 7''
Primary Pitch
6 on 12