

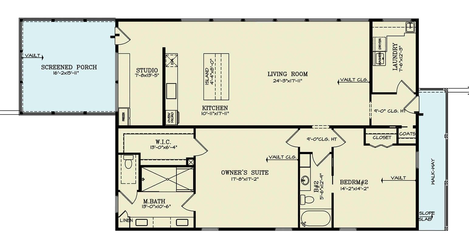
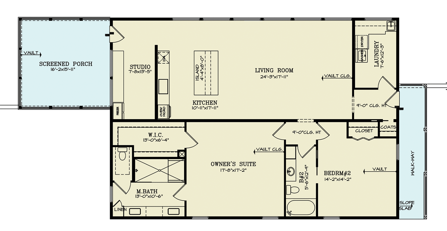
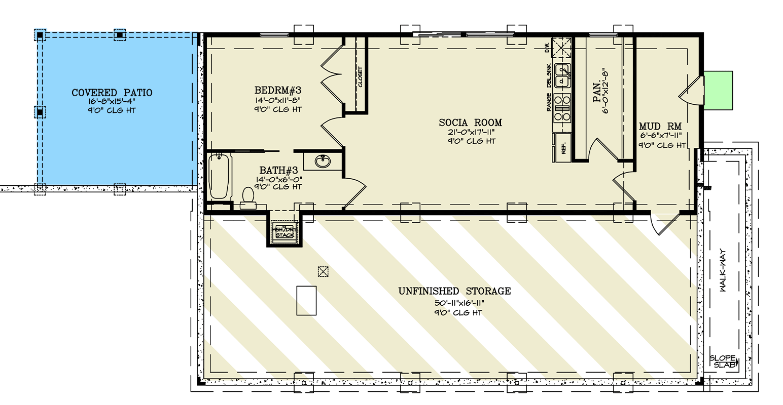
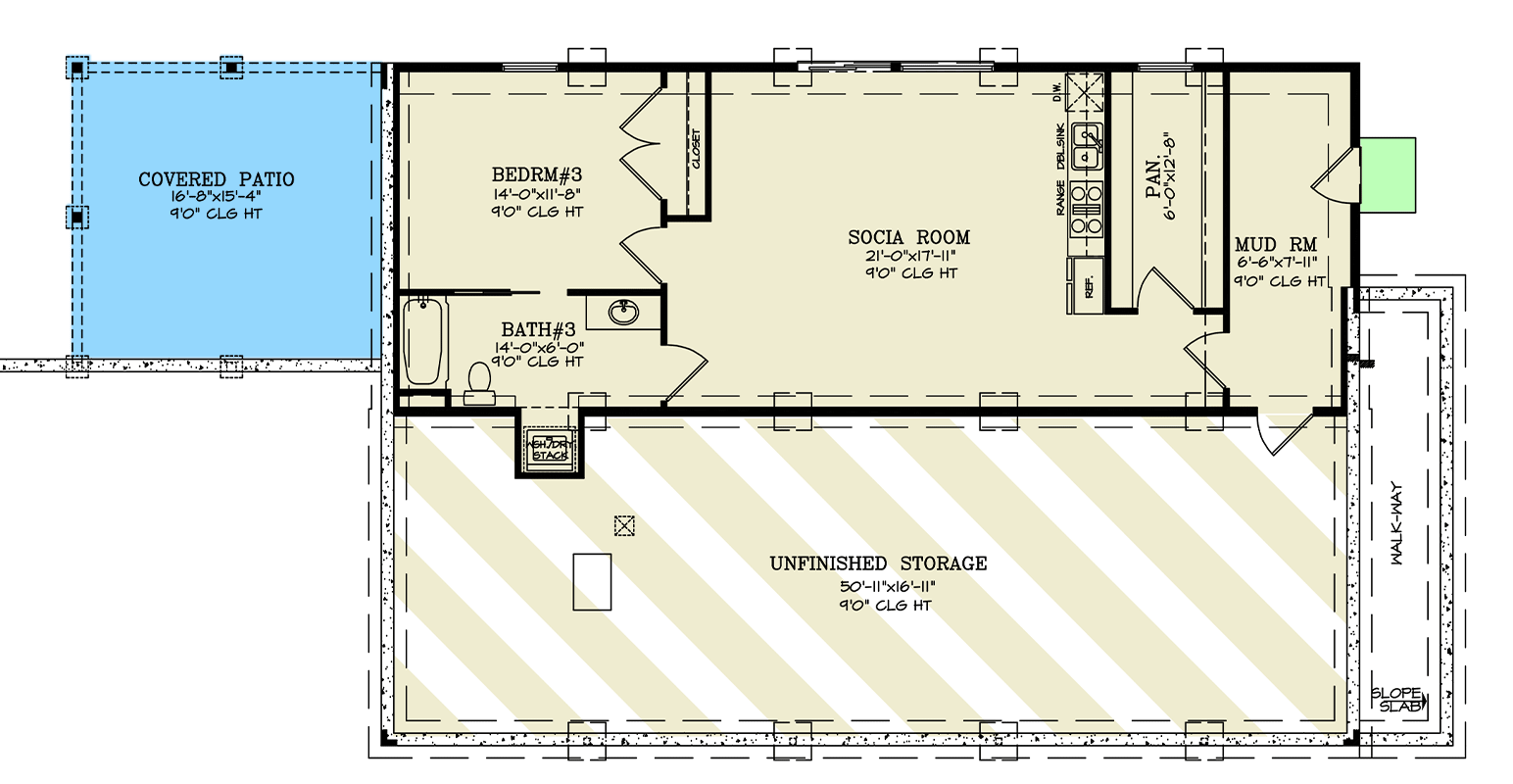
Total Heated Area
2,890 sq. ft.
Lower Level
982 sq. ft.
1st Floor
1,908 sq. ft.
Covered Patio
272 sq. ft.
Storage
851 sq. ft.
Bedrooms
3
Full bathrooms
3
Standard Foundations
Walkout
Exterior Walls
2x6
Width
73' 9"
Depth
36' 6"
Lower Level
9'
First Floor
10'
Primary Pitch
1.5 on 12
Framing Type
Stick
Total Heated Area
2,890 sq. ft.
Lower Level
982 sq. ft.
1st Floor
1,908 sq. ft.
Covered Patio
272 sq. ft.
Storage
851 sq. ft.
Bedrooms
3
Full bathrooms
3
Standard Foundations
Walkout
Exterior Walls
2x6
Width
73' 9"
Depth
36' 6"
Lower Level
9'
First Floor
10'
Primary Pitch
1.5 on 12
Framing Type
Stick