

Total Heated Area
1,565 sq. ft.
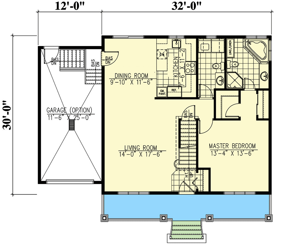
1st Floor
960 sq. ft.
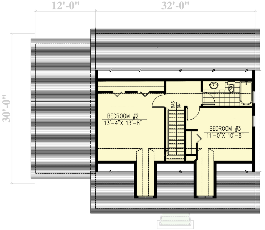
2nd Floor
605 sq. ft.
Basement Unfinished
960 sq. ft.
Porch, Rear
160 sq. ft.
Porch, Combined
50 sq. ft.
Bedrooms
3
Full bathrooms
2
Half bathrooms
1
Standard Foundations
Basement
Exterior Walls
2x6
Width
32' 0"
Depth
30' 0"
Max Ridge Height
28' 2"
Type
Attached
Area
312 sq. ft.
Count
1 Cars
Entry Location
Front
First Floor
8'
Primary Pitch
10 on 12
Framing Type
Truss
Total Heated Area
1,565 sq. ft.
1st Floor
960 sq. ft.
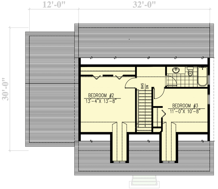
2nd Floor
605 sq. ft.
Basement Unfinished
960 sq. ft.
Porch, Rear
160 sq. ft.
Porch, Combined
50 sq. ft.
Bedrooms
3
Full bathrooms
2
Half bathrooms
1
Standard Foundations
Basement
Exterior Walls
2x6
Width
32' 0"
Depth
30' 0"
Max Ridge Height
28' 2"
Type
Attached
Area
312 sq. ft.
Count
1 Cars
Entry Location
Front
First Floor
8'
Primary Pitch
10 on 12
Framing Type
Truss