
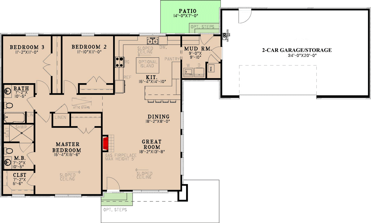
Total Heated Area
1,659 sq. ft.
1st Floor
1,659 sq. ft.
Bedrooms
3
Full bathrooms
2
Standard Foundations
Crawl, Slab
Exterior Walls
2x4
Optional Type(s)
2x6
Width
85' 8"
Depth
44' 9"
Max Ridge Height
15' 6"
Type
Attached
Area
713 sq. ft.
Count
3 Cars
Entry Location
Front
First Floor
8'
Total Heated Area
1,659 sq. ft.
1st Floor
1,659 sq. ft.
Bedrooms
3
Full bathrooms
2
Standard Foundations
Crawl, Slab
Exterior Walls
2x4
Optional Type(s)
2x6
Width
85' 8"
Depth
44' 9"
Max Ridge Height
15' 6"
Type
Attached
Area
713 sq. ft.
Count
3 Cars
Entry Location
Front
First Floor
8'